Connect

4927 Beach Court, Denver, CO – $460,000

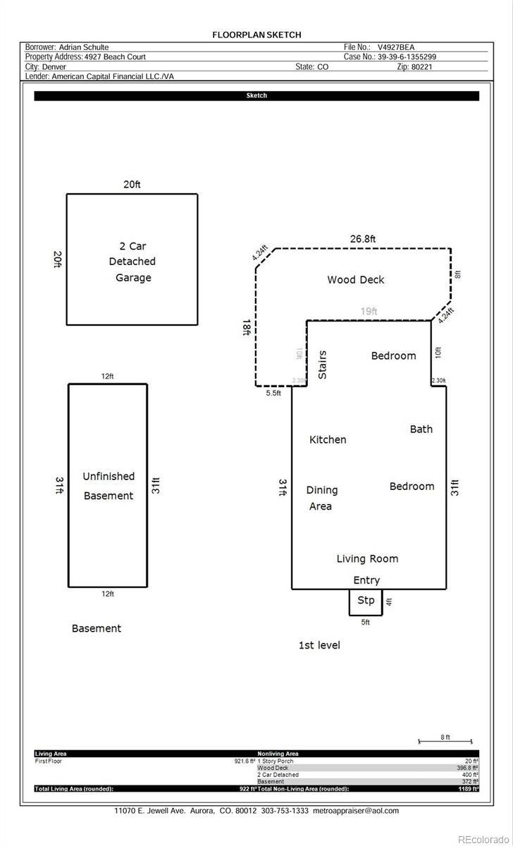
  • 2 Beds
  • 1 Bath
  • 922 Sqft
  • .15 Acres
  • 2 Beds
  • 1 Bath
  • 922 Sqft
  • .15 Acres

New Search X

4927 Beach Court

Welcome to this beautifully updated bungalow in the heart of East Berkeley, where timeless classic charm meets thoughtful modern updates. From the moment you step inside, you’ll appreciate the rich hardwood floors and inviting character details that make this home truly special. The updated bathroom blends vintage style with fresh finishes, featuring newer tile, beadboard accents, and a classic clawfoot tub. The remodeled kitchen is both stylish and functional, offering updated cabinetry, quartz countertops, a farmhouse sink, custom backsplash, and stainless-steel appliances, perfect for everyday living and entertaining. A rare find for the area, this home includes a spacious basement, ideal for storage, hobbies, or a workshop along with a dedicated laundry area complete with newer washer and dryer included. Step outside to your private backyard retreat. The fully fenced yard showcases a freshly refinished deck, paver patio, and raised garden beds, perfect for relaxing or hosting summer gatherings. The detached two-car garage (built in 2013) adds convenience and valuable off-street parking. The xeriscaped front yard offers low-maintenance curb appeal. Major exterior updates provide peace of mind, including newer windows, roof, and durable steel low-maintenance siding. The owned solar system is a tremendous bonus, offering long-term energy savings for the next owner. Located just minutes from Downtown Denver, LoHi, Highlands, Berkeley, and Sunnyside, you’ll enjoy easy access to some of Denver’s best dining, shopping, nightlife, and entertainment. Close proximity to Regis University, parks, and neighborhood amenities make this location truly unbeatable.

Listing Office: Madison & Company Properties

Essential Information

  • MLS® #2133267
  • Price$460,000
  • Bedrooms2
  • Bathrooms1.00
  • Full Baths1
  • Square Footage922
  • Acres0.15
  • Year Built1925
  • TypeResidential
  • Sub-TypeSingle Family Residence
  • StyleBungalow
  • StatusPending

Community Information

  • Address4927 Beach Court
  • SubdivisionEast Berkeley
  • CityDenver
  • CountyDenver
  • StateCO
  • Zip Code80221

Amenities

  • Parking Spaces2
  • # of Garages2

Utilities

Cable Available, Electricity Connected, Natural Gas Connected, Phone Available

Parking

Concrete, Exterior Access Door

Interior

  • HeatingForced Air, Natural Gas
  • CoolingCentral Air
  • FireplaceYes
  • FireplacesGas, Gas Log
  • StoriesOne

Interior Features

Ceiling Fan(s), Quartz Counters

Appliances

Dishwasher, Disposal, Dryer, Microwave, Range, Range Hood, Refrigerator, Washer

Exterior

  • Exterior FeaturesGarden, Private Yard
  • Lot DescriptionLandscaped, Level
  • WindowsDouble Pane Windows
  • RoofComposition

School Information

  • DistrictDenver 1
  • ElementaryBeach Court
  • MiddleSkinner
  • HighNorth

Additional Information

  • Date ListedFebruary 24th, 2026
  • ZoningE-SU-DX

Listing Details

  • Madison & Company Properties
Please provide a valid email address.

Terms and Conditions: The content relating to real estate for sale in this Web site comes in part from the Internet Data eXchange ("IDX") program of METROLIST, INC., DBA RECOLORADO® Real estate listings held by brokers other than RE/MAX Professionals are marked with the IDX Logo. This information is being provided for the consumers personal, non-commercial use and may not be used for any other purpose. All information subject to change and should be independently verified.

Copyright 2026 METROLIST, INC., DBA RECOLORADO® -- All Rights Reserved 6455 S. Yosemite St., Suite 500 Greenwood Village, CO 80111 USA

Listing information last updated on March 6th, 2026 at 9:03pm MST.