Connect

204 S Eagle Circle, Aurora, CO – $425,000

  • 2 Beds
  • 2 Baths
  • 1,704 Sqft
  • .07 Acres
  • 2 Beds
  • 2 Baths
  • 1,704 Sqft
  • .07 Acres

New Search X

204 S Eagle Circle

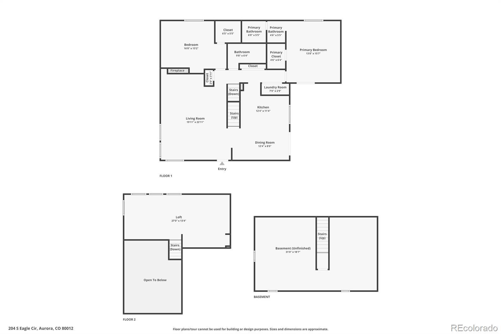
Welcome to this stunning remodeled townhome in Sunridge. This home is bright, open and welcoming to any buyer. The main level features a large family room with a wood burning fireplace and a spacious open kitchen. The first large bedroom has built in shelving, a huge ceder lined walk-in closet and a spacious full bathroom next to it. The primary bedroom has its own 3/4 bathroom and large walk-in closet with custom shelving. The impressive upstairs loft would work excellent for an office or flex space. The unfinished basement has a ton of storage and would be a great space for a buyer to put their personal touch on. This entire unit has been completely remodeled with new luxury vinyl flooring, new carpet, new paint throughout, new countertops, new lighting and all new plumbing fixtures. The roof is also brand new! This great little community has a clubhouse, pool, community garden and large open spaces and trails throughout. It is conveniently located near shopping, dining, movie theaters and has easy access to highways. Don't miss out on this great opportunity! Visit our virtual tour at: https://www.zillow.com/view-imx/c70b867d-0449-4d5c-84e4-c76ad1c50740?setAttribution=mls&wl=true&initialViewType=pano&utm_source=dashboard

Listing Office: Integrity Real Estate Group

Essential Information

  • MLS® #2483763
  • Price$425,000
  • Bedrooms2
  • Bathrooms2.00
  • Full Baths1
  • Square Footage1,704
  • Acres0.07
  • Year Built1980
  • TypeResidential
  • Sub-TypeTownhouse
  • StyleContemporary
  • StatusActive

Community Information

  • Address204 S Eagle Circle
  • SubdivisionSunridge
  • CityAurora
  • CountyArapahoe
  • StateCO
  • Zip Code80012

Amenities

  • Parking Spaces2
  • ParkingOversized
  • # of Garages2

Amenities

Clubhouse, Garden Area, Pool, Trail(s)

Utilities

Cable Available, Electricity Available, Electricity Connected, Phone Available

Interior

  • HeatingForced Air
  • CoolingCentral Air
  • FireplaceYes
  • # of Fireplaces1
  • FireplacesFamily Room, Wood Burning
  • StoriesTwo

Interior Features

High Ceilings, Laminate Counters, Open Floorplan, Primary Suite, Smoke Free, Vaulted Ceiling(s), Walk-In Closet(s)

Appliances

Dishwasher, Disposal, Gas Water Heater, Microwave, Oven

Exterior

  • Lot DescriptionCorner Lot, Landscaped
  • WindowsWindow Coverings
  • RoofComposition
  • FoundationConcrete Perimeter, Slab

School Information

  • DistrictAdams-Arapahoe 28J
  • ElementarySixth Avenue
  • MiddleEast
  • HighHinkley

Additional Information

  • Date ListedJanuary 22nd, 2026

Listing Details

  • Integrity Real Estate Group
Please provide a valid email address.

Terms and Conditions: The content relating to real estate for sale in this Web site comes in part from the Internet Data eXchange ("IDX") program of METROLIST, INC., DBA RECOLORADO® Real estate listings held by brokers other than RE/MAX Professionals are marked with the IDX Logo. This information is being provided for the consumers personal, non-commercial use and may not be used for any other purpose. All information subject to change and should be independently verified.

Copyright 2026 METROLIST, INC., DBA RECOLORADO® -- All Rights Reserved 6455 S. Yosemite St., Suite 500 Greenwood Village, CO 80111 USA

Listing information last updated on January 24th, 2026 at 1:18am MST.