Connect

12710 W Glasgow Place, Littleton, CO – $837,900

  • 3 Beds
  • 4 Baths
  • 2,576 Sqft
  • .15 Acres
  • 3 Beds
  • 4 Baths
  • 2,576 Sqft
  • .15 Acres

New Search X

12710 W Glasgow Place

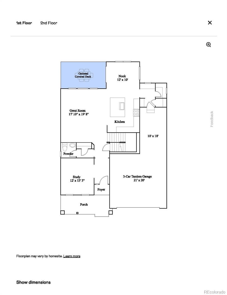
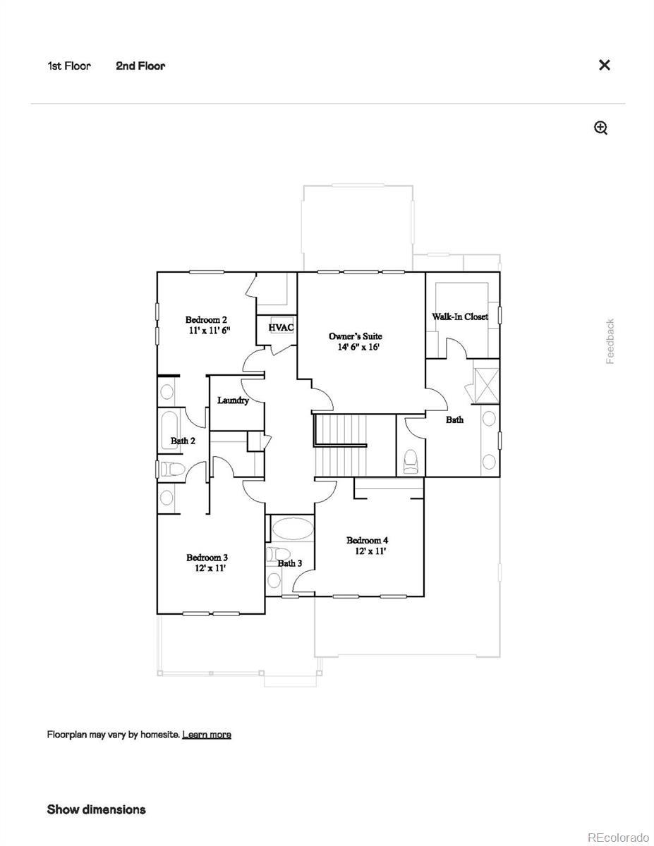
**Contact builder today about Special Financing for this home - terms and conditions apply** Available NOW! Ken Caryl Ranch is a stellar new community located in Littleton. This gorgeous 2-story Ashbrook features 3 beds, 3.5 baths, dining & great rooms, study, kitchen, loft, unfinished basement for future expansion & 3 car garage (2 + 1 tandem). Beautiful upgrades and finishes including a slab quartz counters & island, stainless kitchen appliances, vinyl plank flooring, covered deck and more. The builder provides the latest in energy efficiency and state of the art technology with several fabulous floorplans to choose from. Energy efficiency, and technology seamlessly blended with luxury to make your new house a home. Red Rocks Ranch offers single family homes for every lifestyle. Close to dining, shopping, entertainment and other amenities. Welcome Home! Photos and walkthrough tour are a model only and subject to change.

Listing Office: RE/MAX Professionals

Essential Information

  • MLS® #2736129
  • Price$837,900
  • Bedrooms3
  • Bathrooms4.00
  • Full Baths2
  • Half Baths1
  • Square Footage2,576
  • Acres0.15
  • Year Built2025
  • TypeResidential
  • Sub-TypeSingle Family Residence
  • StatusPending

Community Information

  • Address12710 W Glasgow Place
  • SubdivisionKen Caryl Ranch
  • CityLittleton
  • CountyJefferson
  • StateCO
  • Zip Code80127

Amenities

  • Parking Spaces3
  • ParkingConcrete
  • # of Garages3

Utilities

Cable Available, Electricity Available, Electricity Connected, Natural Gas Available, Natural Gas Connected, Phone Available

Interior

  • HeatingForced Air, Natural Gas
  • CoolingCentral Air
  • StoriesTwo

Interior Features

Breakfast Bar, Kitchen Island, Open Floorplan, Smoke Free, Walk-In Closet(s)

Appliances

Dishwasher, Disposal, Microwave, Oven, Refrigerator

Exterior

  • Exterior FeaturesRain Gutters
  • WindowsDouble Pane Windows
  • RoofConcrete
  • FoundationSlab

School Information

  • DistrictJefferson County R-1
  • ElementaryUte Meadows
  • MiddleDeer Creek
  • HighChatfield

Additional Information

  • Date ListedOctober 14th, 2025
  • ZoningRES

Listing Details

  • RE/MAX Professionals
Please provide a valid email address.

Terms and Conditions: The content relating to real estate for sale in this Web site comes in part from the Internet Data eXchange ("IDX") program of METROLIST, INC., DBA RECOLORADO® Real estate listings held by brokers other than RE/MAX Professionals are marked with the IDX Logo. This information is being provided for the consumers personal, non-commercial use and may not be used for any other purpose. All information subject to change and should be independently verified.

Copyright 2025 METROLIST, INC., DBA RECOLORADO® -- All Rights Reserved 6455 S. Yosemite St., Suite 500 Greenwood Village, CO 80111 USA

Listing information last updated on December 18th, 2025 at 7:48am MST.