Connect

2712 Irving Street, Denver, CO – $1,250,000

  • 4 Beds
  • 5 Baths
  • 3,132 Sqft
  • .07 Acres
  • 4 Beds
  • 5 Baths
  • 3,132 Sqft
  • .07 Acres

New Search X

2712 Irving Street

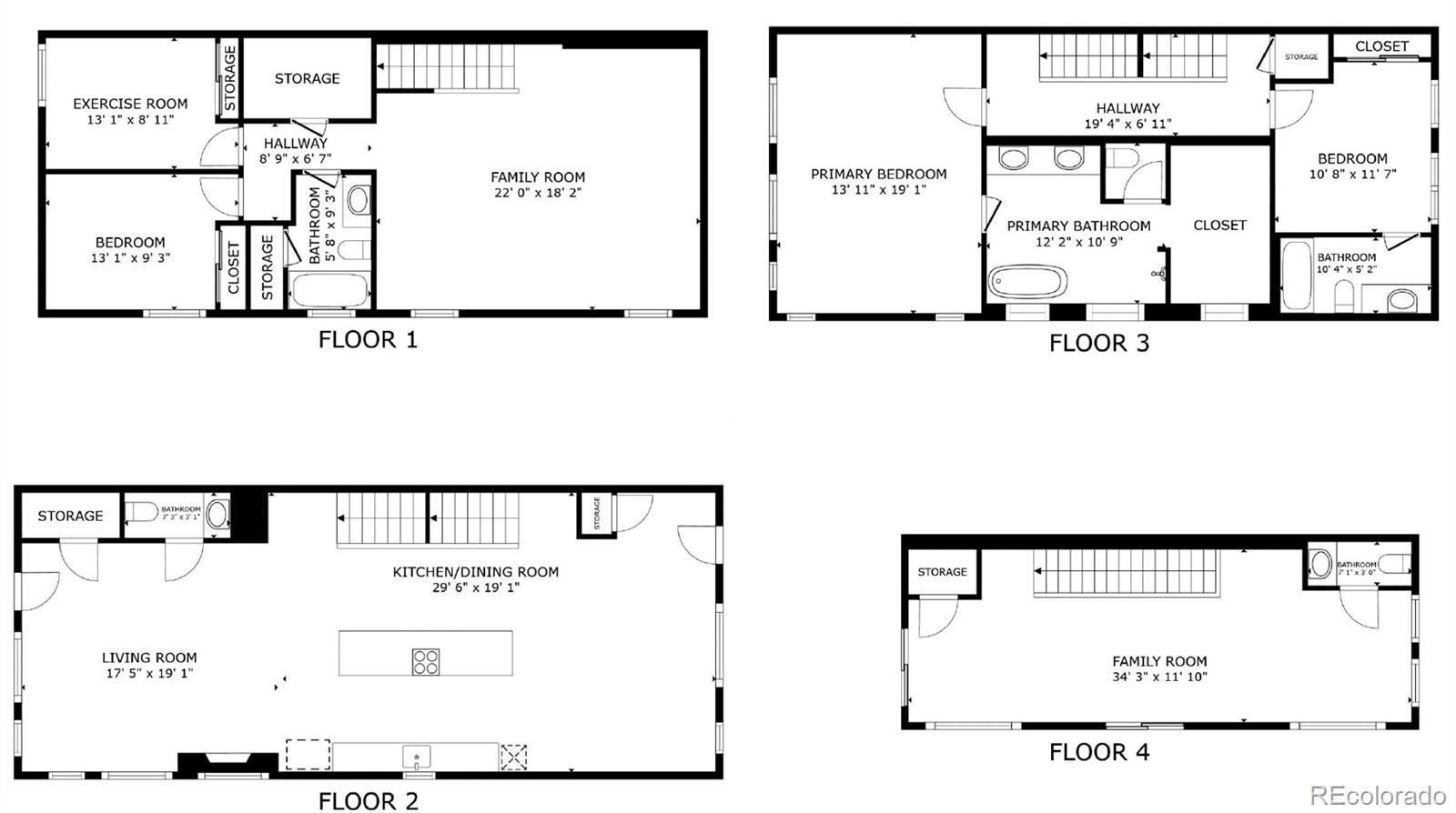
Poised between West Highlands and Sloan’s Lake, this refined Highlands duplex delivers architectural presence and skyline-worthy living. Spanning three light-filled levels, this interior is defined by soaring ceilings and elevated finishes throughout. The main level centers around an inviting living space with a gas fireplace, custom built-in storage and seamless flow into a chef’s kitchen outfitted with Electrolux appliances, a large island and a walk-in pantry. Outdoor living is woven throughout, from the sunken, illuminated patio with a gas grill hookup to the expansive rooftop deck flaunting city and mountain views. The oversized primary suite is a serene retreat, featuring a five-piece bath and a walk-in closet with built-in storage. A secondary bedroom offers its own en-suite bath and Elfa closet system, while a third-floor flex space includes a wet bar and half bath. Downstairs, a finished basement provides a rec room, two additional bedrooms and a full bathroom. Additional highlights include a detached two-car garage with a 220V plug, front sprinklers and zoned climate control with dual furnaces.

Listing Office: Milehimodern

Essential Information

  • MLS® #2802558
  • Price$1,250,000
  • Bedrooms4
  • Bathrooms5.00
  • Full Baths3
  • Half Baths2
  • Square Footage3,132
  • Acres0.07
  • Year Built2013
  • TypeResidential
  • Sub-TypeSingle Family Residence
  • StyleContemporary
  • StatusComing Soon

Community Information

  • Address2712 Irving Street
  • SubdivisionHighlands
  • CityDenver
  • CountyDenver
  • StateCO
  • Zip Code80211

Amenities

  • Parking Spaces2
  • Parking220 Volts
  • # of Garages2
  • ViewCity, Mountain(s)

Utilities

Cable Available, Electricity Connected, Natural Gas Connected, Phone Available

Interior

  • HeatingForced Air
  • CoolingCentral Air
  • FireplaceYes
  • # of Fireplaces1
  • FireplacesGas, Gas Log, Living Room
  • StoriesThree Or More

Interior Features

Built-in Features, Butcher Counters, Ceiling Fan(s), Eat-in Kitchen, Five Piece Bath, High Ceilings, Kitchen Island, Open Floorplan, Pantry, Primary Suite, Quartz Counters, Smart Thermostat, Walk-In Closet(s), Wet Bar

Appliances

Convection Oven, Dishwasher, Disposal, Dryer, Microwave, Oven, Range Hood, Refrigerator, Washer

Exterior

  • WindowsWindow Coverings
  • RoofRolled/Hot Mop

Exterior Features

Balcony, Garden, Gas Valve, Lighting, Private Yard, Rain Gutters

Lot Description

Landscaped, Level, Sprinklers In Front

School Information

  • DistrictDenver 1
  • ElementaryBrown
  • MiddleSkinner
  • HighNorth

Additional Information

  • Date ListedFebruary 2nd, 2026
  • ZoningU-TU-C

Listing Details

  • Milehimodern
Please provide a valid email address.

Terms and Conditions: The content relating to real estate for sale in this Web site comes in part from the Internet Data eXchange ("IDX") program of METROLIST, INC., DBA RECOLORADO® Real estate listings held by brokers other than RE/MAX Professionals are marked with the IDX Logo. This information is being provided for the consumers personal, non-commercial use and may not be used for any other purpose. All information subject to change and should be independently verified.

Copyright 2026 METROLIST, INC., DBA RECOLORADO® -- All Rights Reserved 6455 S. Yosemite St., Suite 500 Greenwood Village, CO 80111 USA

Listing information last updated on February 4th, 2026 at 8:34pm MST.