Connect

8055 S Hoyt Street, Littleton, CO – $540,000

  • 3 Beds
  • 2 Baths
  • 1,360 Sqft
  • .14 Acres
  • 3 Beds
  • 2 Baths
  • 1,360 Sqft
  • .14 Acres

New Search X

8055 S Hoyt Street

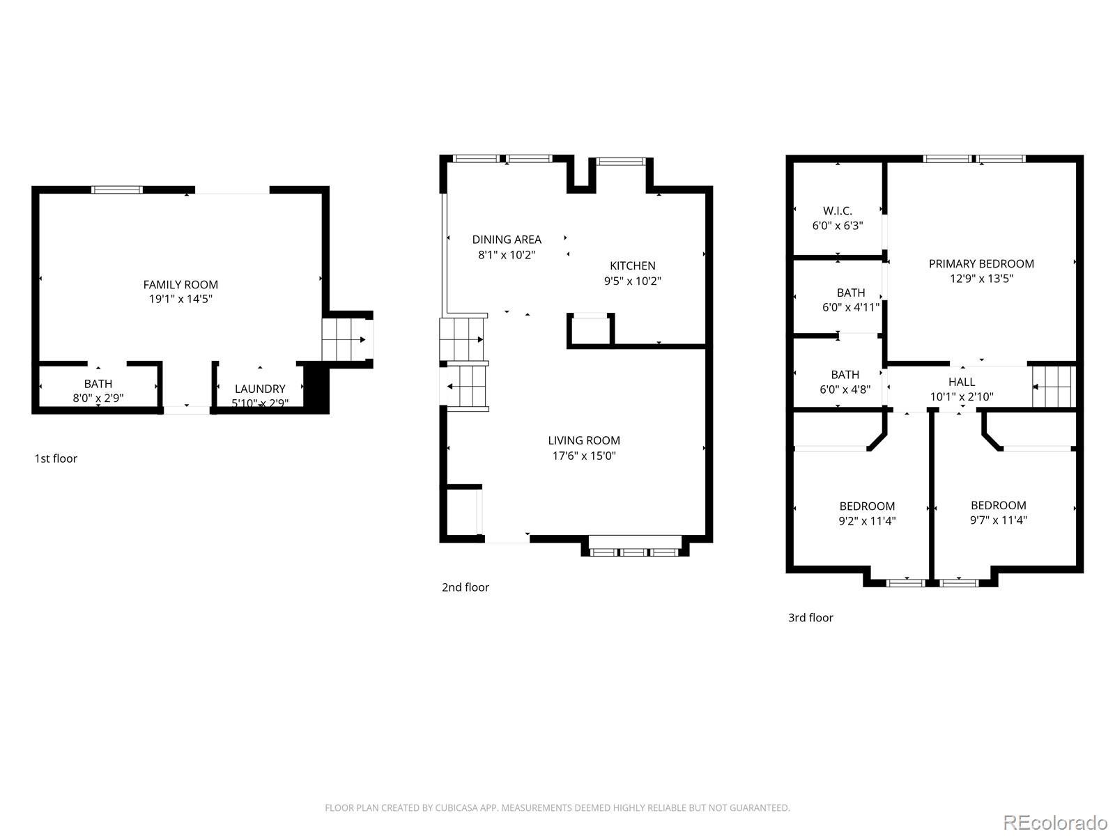
Updated and meticulously cared-for tri-level on a corner lot in a cul-de-sac. 3 beds upstairs plus a bath, new hardwood plank flooring throughout. Great natural light, vaulted ceilings, open and easy. Bright and updated, eat-in kitchen, featuring beautiful granite counters, stainless appliances, and plentiful cabinet space. Sliding glass doors from family room to outdoor patio and spacious back yard with space on side for boat storage, etc..NEW ROOF 2020. NEW HVAC 2022. No HOA. Fabulous location near parks, trails, shops, easy access to 470 and more!

Listing Office: Compass - Denver

Essential Information

  • MLS® #2835456
  • Price$540,000
  • Bedrooms3
  • Bathrooms2.00
  • Full Baths1
  • Half Baths1
  • Square Footage1,360
  • Acres0.14
  • Year Built1984
  • TypeResidential
  • Sub-TypeSingle Family Residence
  • StyleTraditional
  • StatusPending

Community Information

  • Address8055 S Hoyt Street
  • SubdivisionDakota Station
  • CityLittleton
  • CountyJefferson
  • StateCO
  • Zip Code80128

Amenities

  • Parking Spaces4
  • ParkingConcrete, Storage
  • # of Garages2

Interior

  • HeatingForced Air
  • CoolingCentral Air
  • StoriesTri-Level

Interior Features

Eat-in Kitchen, Entrance Foyer, High Ceilings, Open Floorplan, Pantry, Primary Suite, Radon Mitigation System, Smoke Free

Exterior

  • Exterior FeaturesPrivate Yard, Rain Gutters
  • RoofComposition
  • FoundationSlab

Lot Description

Corner Lot, Cul-De-Sac, Sprinklers In Front, Sprinklers In Rear

School Information

  • DistrictJefferson County R-1
  • ElementaryMortensen
  • MiddleFalcon Bluffs
  • HighChatfield

Additional Information

  • Date ListedJanuary 9th, 2026

Listing Details

  • Compass - Denver
Please provide a valid email address.

Terms and Conditions: The content relating to real estate for sale in this Web site comes in part from the Internet Data eXchange ("IDX") program of METROLIST, INC., DBA RECOLORADO® Real estate listings held by brokers other than RE/MAX Professionals are marked with the IDX Logo. This information is being provided for the consumers personal, non-commercial use and may not be used for any other purpose. All information subject to change and should be independently verified.

Copyright 2026 METROLIST, INC., DBA RECOLORADO® -- All Rights Reserved 6455 S. Yosemite St., Suite 500 Greenwood Village, CO 80111 USA

Listing information last updated on February 18th, 2026 at 1:48am MST.