Connect

2960 E Floyd Drive, Denver, CO – $3,945,000

  • 4 Beds
  • 6 Baths
  • 5,708 Sqft
  • .38 Acres
  • 4 Beds
  • 6 Baths
  • 5,708 Sqft
  • .38 Acres

New Search X

2960 E Floyd Drive

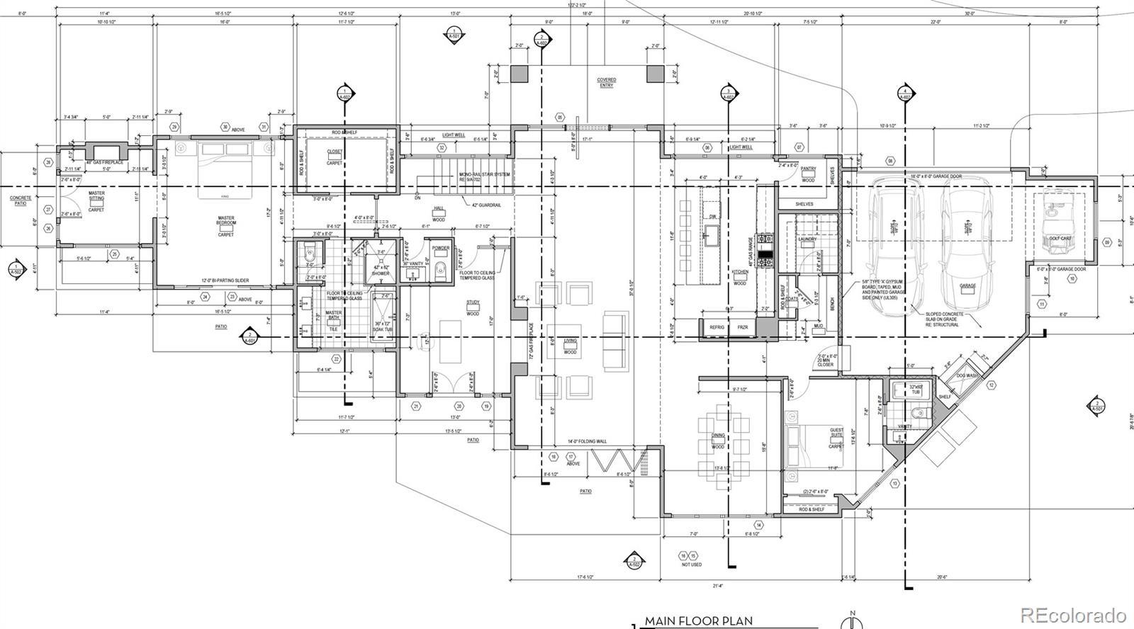
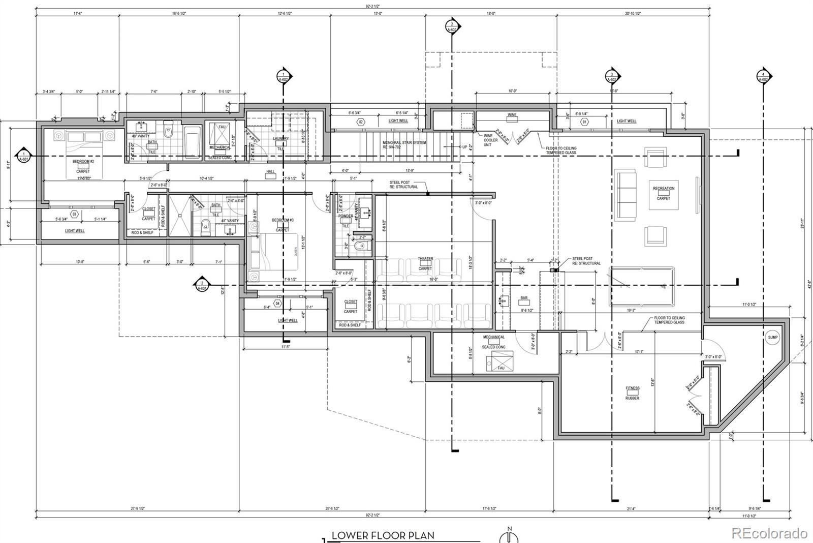
Experience unparalleled living in Cherry Hills Heights, as the sole new build on Wellshire Golf Course (one of Denvers few prized golf courses). This 4 bd, 6 bath transitional modern estate epitomizes luxury design, with expansive views of lush greens and mature trees from every room. Showcasing a sleek exterior with nickel gap siding contrasted by bold natural stone elements. Pivot-style metal front door opens to a dramatic open-concept living space. Inside soaring ceilings and floor-to-ceiling top-line Anderson Architectural wood windows flood the white oak hardwood floors with natural light. The living room features a double-sided fireplace with Keystone countertop face and floor-to-ceiling Porcelanosa tile, separating an office lined with custom bookshelves. Chef’s kitchen boasts an 11-ft waterfall island, top-tier Wolff/Sub-Zero appliances, walk-in-pantry, and custom American-made floor-to-ceiling cabinetry. The primary suite overlooks the 5th hole and includes a sitting room with gas fireplace, two walk-out patios, and a walk-in closet with custom cabinetry. The 5-piece primary bathroom features handmade Moroccan tile in the shower and spa-like tile and slabs throughout the bathroom.Custom metal staircase—set above a functioning garden—to a perfect entertainment space with porcelain backsplash wet bar. Basement includes two bedrooms, a gym, 3 baths, space for a movie theater, and space for a reach-in wine room. Builder has designs for finishing spaces. The backyard is perfect for gatherings, low maintenance, and flows seamlessly into the golf course. Two-car garage includes heater, EV charger, dog wash, and golf cart space with direct course access. Located in the prestigious Cherry Hills district and surrounded by Denver’s #1-ranked Wellshire neighborhood (5280 Magazine), with top-rated A+ Slavens K-8 school. HOA. No golf membershiprequired. PBG provides industry leading 2-year builder’s warranty and an 8-year structural warranty for added peace of mind.

Listing Office: BLVD Real Estate Group, LLC

Essential Information

  • MLS® #3003698
  • Price$3,945,000
  • Bedrooms4
  • Bathrooms6.00
  • Full Baths3
  • Half Baths2
  • Square Footage5,708
  • Acres0.38
  • Year Built2025
  • TypeResidential
  • Sub-TypeSingle Family Residence
  • StatusActive

Community Information

  • Address2960 E Floyd Drive
  • SubdivisionCherry Hills Heights Sub
  • CityDenver
  • CountyDenver
  • StateCO
  • Zip Code80210

Amenities

  • Parking Spaces3
  • # of Garages3

Utilities

Cable Available, Electricity Available, Electricity Connected

Interior

  • HeatingForced Air
  • CoolingCentral Air
  • FireplaceYes
  • # of Fireplaces2
  • StoriesOne

Interior Features

Five Piece Bath, Primary Suite, Quartz Counters, Vaulted Ceiling(s), Walk-In Closet(s), Wet Bar

Fireplaces

Living Room, Other, Primary Bedroom

Exterior

  • Exterior FeaturesGas Valve
  • Lot DescriptionLevel, On Golf Course
  • RoofMembrane

School Information

  • DistrictDenver 1
  • ElementarySlavens E-8
  • MiddleMerrill
  • HighThomas Jefferson

Additional Information

  • Date ListedJuly 21st, 2025
  • ZoningS-SU-I

Listing Details

  • BLVD Real Estate Group, LLC
Please provide a valid email address.

Terms and Conditions: The content relating to real estate for sale in this Web site comes in part from the Internet Data eXchange ("IDX") program of METROLIST, INC., DBA RECOLORADO® Real estate listings held by brokers other than RE/MAX Professionals are marked with the IDX Logo. This information is being provided for the consumers personal, non-commercial use and may not be used for any other purpose. All information subject to change and should be independently verified.

Copyright 2025 METROLIST, INC., DBA RECOLORADO® -- All Rights Reserved 6455 S. Yosemite St., Suite 500 Greenwood Village, CO 80111 USA

Listing information last updated on December 11th, 2025 at 11:03am MST.