Connect

12668 W Geddes Drive, Littleton, CO – $734,900

  • 4 Beds
  • 3 Baths
  • 2,083 Sqft
  • .14 Acres
  • 4 Beds
  • 3 Baths
  • 2,083 Sqft
  • .14 Acres

New Search X

12668 W Geddes Drive

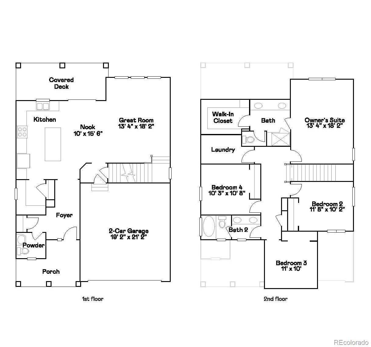
***Contact builder today about Special Financing for this home - terms and conditions apply** Anticipated Completion February 2026!** This gorgeous Evans 2-story in Ken Caryl community features 4 beds, 2.5 baths, spacious kitchen w/pocket office, great room, unfinished basement for future expansion and a 2 car garage. Beautiful upgrades and finishes throughout including luxury vinyl plank flooring, stainless steel appliances and more. The builder provides the latest in energy efficiency and state of the art technology with several fabulous floorplans to choose from. What some builders consider high-end upgrades, this builder makes a standard inclusion. This community offers single family homes for every lifestyle. Close to dining, shopping, entertainment and other amenities. Come see what you have been missing today! Don’t wait– this community will sell out quickly! Welcome Home!

Listing Office: RE/MAX Professionals

Essential Information

  • MLS® #4325104
  • Price$734,900
  • Bedrooms4
  • Bathrooms3.00
  • Full Baths1
  • Half Baths1
  • Square Footage2,083
  • Acres0.14
  • Year Built2026
  • TypeResidential
  • Sub-TypeSingle Family Residence
  • StatusActive

Community Information

  • Address12668 W Geddes Drive
  • SubdivisionKen Caryl Ranch
  • CityLittleton
  • CountyJefferson
  • StateCO
  • Zip Code80127

Amenities

  • Parking Spaces2
  • ParkingConcrete
  • # of Garages2

Utilities

Cable Available, Electricity Available, Electricity Connected, Natural Gas Available, Natural Gas Connected, Phone Available

Interior

  • HeatingGeothermal
  • CoolingCentral Air
  • StoriesTwo

Interior Features

Breakfast Bar, Kitchen Island, Open Floorplan, Pantry, Smoke Free, Walk-In Closet(s)

Appliances

Dishwasher, Disposal, Microwave, Oven, Refrigerator

Exterior

  • Exterior FeaturesRain Gutters
  • WindowsDouble Pane Windows
  • RoofComposition
  • FoundationSlab

School Information

  • DistrictJefferson County R-1
  • ElementaryUte Meadows
  • MiddleDeer Creek
  • HighChatfield

Additional Information

  • Date ListedJanuary 5th, 2026
  • ZoningRES

Listing Details

  • RE/MAX Professionals
Please provide a valid email address.

Terms and Conditions: The content relating to real estate for sale in this Web site comes in part from the Internet Data eXchange ("IDX") program of METROLIST, INC., DBA RECOLORADO® Real estate listings held by brokers other than RE/MAX Professionals are marked with the IDX Logo. This information is being provided for the consumers personal, non-commercial use and may not be used for any other purpose. All information subject to change and should be independently verified.

Copyright 2026 METROLIST, INC., DBA RECOLORADO® -- All Rights Reserved 6455 S. Yosemite St., Suite 500 Greenwood Village, CO 80111 USA

Listing information last updated on January 28th, 2026 at 10:03am MST.