Connect

790 N Washington Street 1203, Denver, CO – $249,000

  • $249k Price
  • 1 Bath
  • 457 Sqft
  • .65 Acres
  • $249k Price
  • 1 Bath
  • 457 Sqft
  • .65 Acres

New Search X

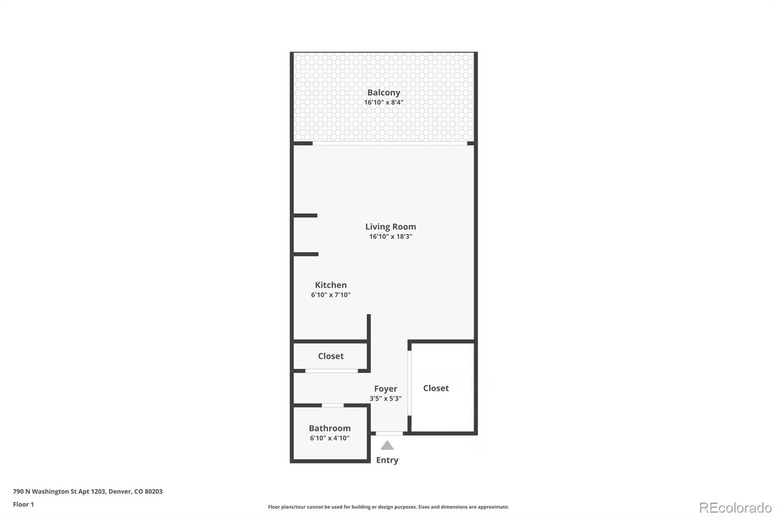
790 N Washington Street 1203

Welcome to 790 N Washington St, a thoughtfully designed studio condo in the heart of Capitol Hill, offering stunning mountain views and a highly efficient, modern layout. Expansive windows flood the space with natural light while perfectly framing Front Range sunsets—creating an elevated living experience high above the city. The open-concept studio features a custom built-in Murphy bed, allowing the space to effortlessly transition from a comfortable living area by day to a private sleeping retreat by night. This smart, flexible design maximizes functionality without sacrificing style—ideal for urban living, hosting guests, or a low-maintenance lifestyle. The kitchen and living areas flow seamlessly, making the home perfect for entertaining, working from home, or simply unwinding while taking in the views. Start your mornings with coffee overlooking the mountains and end your evenings watching city lights sparkle below—this condo offers a rare balance of ambiance, efficiency, and comfort. Residents enjoy access to premium building amenities, including a newly renovated 15th-floor clubhouse and outdoor deck—perfect for gathering with friends or taking in panoramic city and mountain views. Wellness and convenience continue on the 16th floor, featuring a fully equipped fitness center, sauna, and freshly renovated outdoor pool w/ grills and firepits, creating a true lifestyle-driven living experience rarely found in Capitol Hill. Located just steps from the neighborhood’s best dining, coffee shops, parks, and cultural attractions—with easy access to Downtown Denver, Cherry Creek, and Cheesman Park—this home is a standout opportunity for both owner-occupants and investors alike. Smart design, mountain views, along with its own carport space (covered parking) and exceptional amenities come together in this truly turnkey Capitol Hill studio.

Listing Office: eXp Realty, LLC

Essential Information

  • MLS® #4342302
  • Price$249,000
  • Bathrooms1.00
  • Full Baths1
  • Square Footage457
  • Acres0.65
  • Year Built1961
  • TypeResidential
  • Sub-TypeCondominium
  • StyleStudio
  • StatusActive

Community Information

  • Address790 N Washington Street 1203
  • SubdivisionCapitol Hill
  • CityDenver
  • CountyDenver
  • StateCO
  • Zip Code80203

Amenities

  • Parking Spaces1
  • ParkingConcrete
  • ViewCity, Mountain(s)
  • Has PoolYes
  • PoolOutdoor Pool

Amenities

Bike Storage, Business Center, Clubhouse, Coin Laundry, Elevator(s), Fitness Center, Pool, Sauna

Utilities

Cable Available, Electricity Available

Interior

  • HeatingHot Water
  • CoolingCentral Air
  • StoriesOne

Interior Features

Built-in Features, Granite Counters, No Stairs, Open Floorplan, Pantry, Smoke Free

Appliances

Dishwasher, Disposal, Oven, Refrigerator

Exterior

  • Exterior FeaturesBalcony
  • Lot DescriptionNear Public Transit
  • RoofUnknown
  • FoundationConcrete Perimeter

School Information

  • DistrictDenver 1
  • ElementaryDora Moore
  • MiddleMorey
  • HighEast

Additional Information

  • Date ListedJanuary 13th, 2026
  • ZoningG-MU-12

Listing Details

  • eXp Realty, LLC
Please provide a valid email address.

Terms and Conditions: The content relating to real estate for sale in this Web site comes in part from the Internet Data eXchange ("IDX") program of METROLIST, INC., DBA RECOLORADO® Real estate listings held by brokers other than RE/MAX Professionals are marked with the IDX Logo. This information is being provided for the consumers personal, non-commercial use and may not be used for any other purpose. All information subject to change and should be independently verified.

Copyright 2026 METROLIST, INC., DBA RECOLORADO® -- All Rights Reserved 6455 S. Yosemite St., Suite 500 Greenwood Village, CO 80111 USA

Listing information last updated on March 11th, 2026 at 1:04pm MDT.