Connect

1622 Ponderosa Court, Fort Lupton, CO – $489,000

  • 5 Beds
  • 3 Baths
  • 2,638 Sqft
  • .17 Acres
  • 5 Beds
  • 3 Baths
  • 2,638 Sqft
  • .17 Acres

New Search X

1622 Ponderosa Court

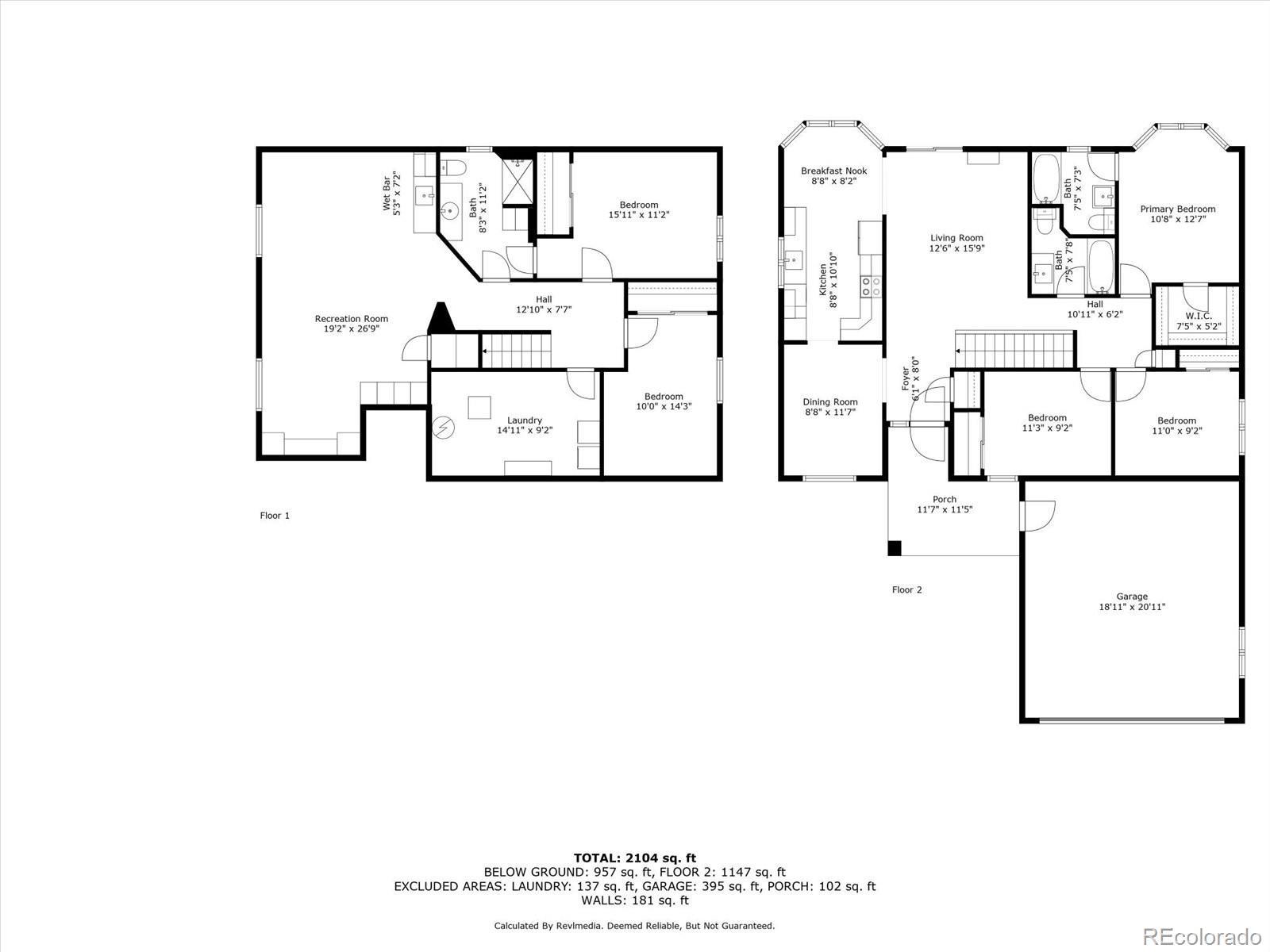
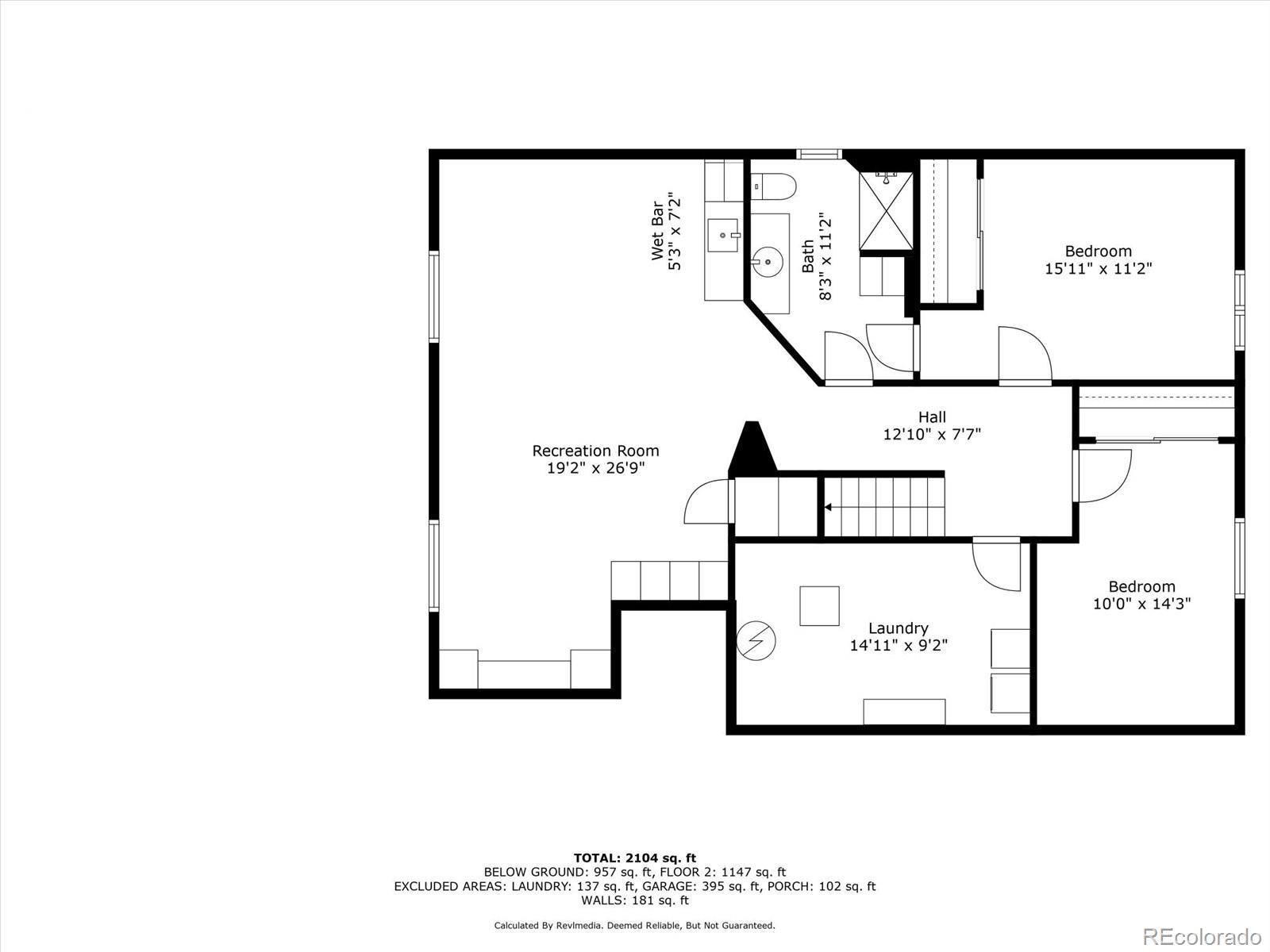
**Welcome to This Stunning 5-Bed, 3-Bath Home!**The home offers features that are conducive to remote work and energy savings, including solar panels, a heat pump, an EV charger hookup, and smart technology such as locks, switches, cameras, and fans. Discover this wonderful, move-in-ready ranch-style home, spanning 2,642 sq ft. Upon entering, you will be greeted by tall ceilings, luxury vinyl plank (LVP) flooring, and brand-new carpet. The home features three bedrooms and two full bathrooms on the upper level, along with two additional bedrooms and a three-quarter bath in the basement. The main level includes the kitchen, living room, and dining room, making it perfect for entertaining guests. The kitchen boasts Samsung stainless steel appliances, while the laundry room offers ample storage space. The lower-level media room is ideal for family movie nights. Step outside to enjoy the relaxing backyard patio, complete with a trampoline. The two-car garage is equipped with 220-volt outlets, making it ready for charging your electric vehicles! This home is loaded with upgrades: - New carpet and LVP flooring installed in closets in 2025 - Exterior painted in 2024 - A new HVAC system featuring a heat pump, humidifier, and extended filtration system - Remodeled main-level bathrooms with smart Bluetooth vents - Smart locks and a smart garage door with a battery backup system installed in 2023 - Fresh interior paint and a new water heater completed in 2022 - Owned Tesla solar shingles installed in 2020. This home is a MUST SEE!

Listing Office: RE/MAX Momentum

Essential Information

  • MLS® #4538733
  • Price$489,000
  • Bedrooms5
  • Bathrooms3.00
  • Full Baths2
  • Square Footage2,638
  • Acres0.17
  • Year Built2006
  • TypeResidential
  • Sub-TypeSingle Family Residence
  • StatusActive

Community Information

  • Address1622 Ponderosa Court
  • SubdivisionCoyote Creek
  • CityFort Lupton
  • CountyWeld
  • StateCO
  • Zip Code80621

Amenities

  • AmenitiesPlayground
  • Parking Spaces2
  • Parking220 Volts
  • # of Garages2

Interior

  • HeatingForced Air
  • CoolingCentral Air
  • StoriesOne

Interior Features

Ceiling Fan(s), Eat-in Kitchen

Appliances

Dishwasher, Disposal, Microwave, Oven, Range, Refrigerator

Exterior

  • Lot DescriptionCul-De-Sac
  • RoofSolar Shingles

School Information

  • DistrictWeld County RE-8
  • ElementaryTwombly
  • MiddleFort Lupton
  • HighFort Lupton

Additional Information

  • Date ListedAugust 7th, 2025

Listing Details

  • RE/MAX Momentum
Please provide a valid email address.

Terms and Conditions: The content relating to real estate for sale in this Web site comes in part from the Internet Data eXchange ("IDX") program of METROLIST, INC., DBA RECOLORADO® Real estate listings held by brokers other than RE/MAX Professionals are marked with the IDX Logo. This information is being provided for the consumers personal, non-commercial use and may not be used for any other purpose. All information subject to change and should be independently verified.

Copyright 2025 METROLIST, INC., DBA RECOLORADO® -- All Rights Reserved 6455 S. Yosemite St., Suite 500 Greenwood Village, CO 80111 USA

Listing information last updated on December 18th, 2025 at 5:33pm MST.