Connect

1435 S Duquesne, Aurora, CO – $539,999

  • 3 Beds
  • 3 Baths
  • 2,058 Sqft
  • .14 Acres
  • 3 Beds
  • 3 Baths
  • 2,058 Sqft
  • .14 Acres

New Search X

1435 S Duquesne

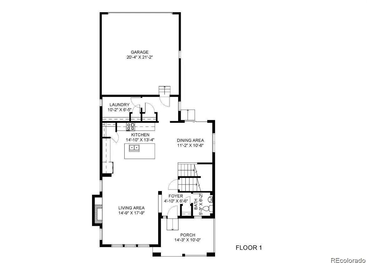
WOW Huge Price drop! This is gonna go fast come and see this property today! Charming Murphy Creek Residence with Stylish Upgrades Nestled in the desirable Murphy Creek community, this well-maintained two-story home features approximately 2,680 sq. ft. of thoughtfully laid-out living space with 3 bedrooms and 3 bathrooms. Built in 2015, the property offers a blend of modern comfort and functional design. Step inside to a bright and open main level that includes a welcoming family room with a cozy fireplace and beautiful hardwood-style flooring. The kitchen flows seamlessly into the dining and living areas, ideal for hosting gatherings and everyday living. Home showcases stainless steel appliances, granite countertops, ample cabinetry with crown molding, stylish light fixtures & plantation shutters throughout the main level. Upstairs, the generous primary suite includes an en-suite bath with a five-piece layout. Two additional bedrooms share another full bathroom, and a loft/secondary family area offers flexible space perfect for a homework station, media room, or play area. You’ll also find main-level laundry for added convenience. The unfinished basement includes rough-in plumbing for a future bathroom and provides opportunities for expansion or storage, also includes a huge crawl space for extra storage. Outside, the lot offers a private backyard and patio space — great for outdoor relaxing or entertaining. Residents enjoy Murphy Creek’s community amenities, such as pool and tennis facilities, parks, trails, and a golf course, along with easy access to Southlands shopping, dining, DIA, and Denver.

Listing Office: eXp Realty, LLC

Essential Information

  • MLS® #5807344
  • Price$539,999
  • Bedrooms3
  • Bathrooms3.00
  • Full Baths2
  • Half Baths1
  • Square Footage2,058
  • Acres0.14
  • Year Built2015
  • TypeResidential
  • Sub-TypeSingle Family Residence
  • StyleTraditional
  • StatusActive

Community Information

  • Address1435 S Duquesne
  • SubdivisionMurphy Creek
  • CityAurora
  • CountyArapahoe
  • StateCO
  • Zip Code80018

Amenities

  • Parking Spaces4
  • ParkingConcrete, Dry Walled
  • # of Garages2

Amenities

Clubhouse, Golf Course, Park, Playground, Pool, Spa/Hot Tub, Tennis Court(s), Trail(s)

Utilities

Cable Available, Electricity Available, Electricity Connected, Internet Access (Wired)

Interior

  • HeatingForced Air
  • CoolingCentral Air
  • FireplaceYes
  • # of Fireplaces1
  • FireplacesFamily Room
  • StoriesThree Or More

Interior Features

Ceiling Fan(s), Eat-in Kitchen

Appliances

Dishwasher, Disposal, Microwave, Oven, Range, Refrigerator, Self Cleaning Oven

Exterior

  • WindowsWindow Coverings
  • RoofComposition
  • FoundationConcrete Perimeter

Lot Description

Landscaped, Sprinklers In Front, Sprinklers In Rear

School Information

  • DistrictAdams-Arapahoe 28J
  • ElementaryMurphy Creek K-8
  • MiddleMurphy Creek K-8
  • HighVista Peak

Additional Information

  • Date ListedJanuary 12th, 2026

Listing Details

  • eXp Realty, LLC
Please provide a valid email address.

Terms and Conditions: The content relating to real estate for sale in this Web site comes in part from the Internet Data eXchange ("IDX") program of METROLIST, INC., DBA RECOLORADO® Real estate listings held by brokers other than RE/MAX Professionals are marked with the IDX Logo. This information is being provided for the consumers personal, non-commercial use and may not be used for any other purpose. All information subject to change and should be independently verified.

Copyright 2026 METROLIST, INC., DBA RECOLORADO® -- All Rights Reserved 6455 S. Yosemite St., Suite 500 Greenwood Village, CO 80111 USA

Listing information last updated on January 24th, 2026 at 2:49am MST.