Connect

8836 Surrey Drive, Evergreen, CO – $928,888

  • 3 Beds
  • 3 Baths
  • 1,650 Sqft
  • 1 Acres
  • 3 Beds
  • 3 Baths
  • 1,650 Sqft
  • 1 Acres

New Search X

8836 Surrey Drive

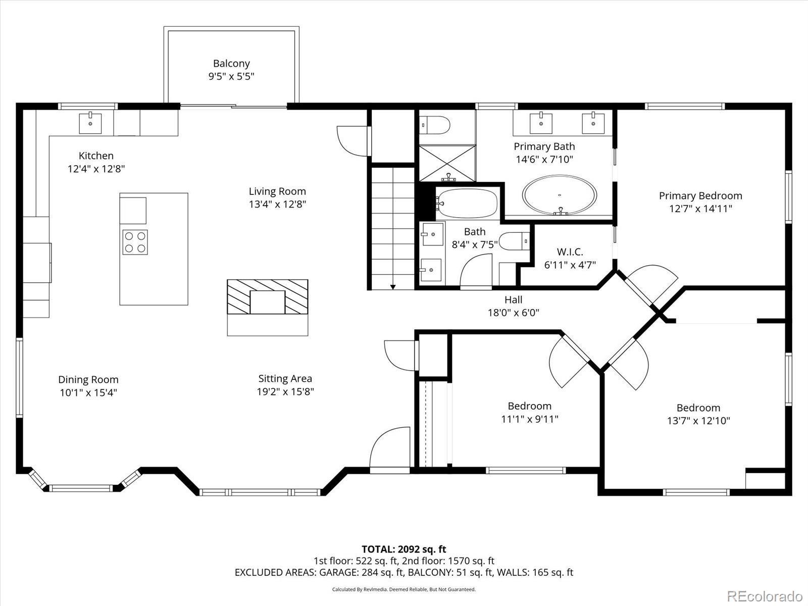
Home for the holidays—and for years to come. Set on a usable, sunlit acre in one of South Evergreen’s most beloved neighborhoods, this newly renovated home offers a rare blend of sophistication, comfort, and craftsmanship. Surrounded by towering pines and a peaceful, endearing sense of privacy, it’s the kind of setting buyers wait years to find. What makes this property truly special is the story behind it. The seller wasn’t preparing a flip—she was crafting her forever home. Every finish was selected with care, every detail executed with long-term quality in mind. From the elevated design choices to the meticulous workmanship, you’ll feel the intention and investment throughout. But life opened an unexpected door abroad, and her dream home will now become someone else’s. For the next owner, that means the benefit of a top-tier custom renovation—move-in ready, beautifully finished, and far beyond the typical “updated” home. This is a scarce opportunity to step into a fully realized vision without the stress, delays, or compromises of a remodel. The hard work is done. The result is exceptional. And homes like this, in this neighborhood, rarely come to market. The main level features vaulted ceilings and a spacious open floorplan including the new Kitchen, Living, and Dining Areas as well as two bedrooms, a new full bathroom - plus the incredible Primary Suite with a completely new 5 piece bathroom and walk in closet. On the lower level, a suite to utilize as a bedroom, office, studio, or apartment for family/friends. Just minutes to groceries, restaurants, parks, and schools. Covenants/zoning even allow for one horse! ** Full Marketing Platform with photos, video, 3D floorplan, floorplans & more at https://qrco.de/bgTMgv ** Call today for a private showing!

Listing Office: The McWilliams Group Real Estate

Essential Information

  • MLS® #5979789
  • Price$928,888
  • Bedrooms3
  • Bathrooms3.00
  • Full Baths2
  • Square Footage1,650
  • Acres1.00
  • Year Built1976
  • TypeResidential
  • Sub-TypeSingle Family Residence
  • StyleMountain Contemporary
  • StatusActive

Community Information

  • Address8836 Surrey Drive
  • SubdivisionValley Hi
  • CityEvergreen
  • CountyJefferson
  • StateCO
  • Zip Code80439

Amenities

  • Parking Spaces5
  • # of Garages1
  • ViewMountain(s)

Utilities

Electricity Connected, Natural Gas Available

Parking

Concrete, Gravel, Dry Walled, Insulated Garage

Interior

  • HeatingBaseboard, Electric, Wood
  • CoolingNone
  • FireplaceYes
  • # of Fireplaces1
  • StoriesOne

Interior Features

Five Piece Bath, High Ceilings, In-Law Floorplan, Kitchen Island, Marble Counters, Open Floorplan, Primary Suite, Quartz Counters, Radon Mitigation System, Smart Thermostat, Smoke Free, Vaulted Ceiling(s), Walk-In Closet(s)

Appliances

Cooktop, Dishwasher, Double Oven, Down Draft, Dryer, Microwave, Oven, Refrigerator, Self Cleaning Oven, Washer, Water Softener

Fireplaces

Insert, Living Room, Wood Burning

Exterior

  • Exterior FeaturesPrivate Yard
  • RoofComposition
  • FoundationConcrete Perimeter

Lot Description

Foothills, Level, Rock Outcropping, Rolling Slope

Windows

Bay Window(s), Double Pane Windows

School Information

  • DistrictJefferson County R-1
  • ElementaryMarshdale
  • MiddleWest Jefferson
  • HighConifer

Additional Information

  • Date ListedNovember 20th, 2025
  • ZoningA-1

Listing Details

The McWilliams Group Real Estate

Please provide a valid email address.

Terms and Conditions: The content relating to real estate for sale in this Web site comes in part from the Internet Data eXchange ("IDX") program of METROLIST, INC., DBA RECOLORADO® Real estate listings held by brokers other than RE/MAX Professionals are marked with the IDX Logo. This information is being provided for the consumers personal, non-commercial use and may not be used for any other purpose. All information subject to change and should be independently verified.

Copyright 2025 METROLIST, INC., DBA RECOLORADO® -- All Rights Reserved 6455 S. Yosemite St., Suite 500 Greenwood Village, CO 80111 USA

Listing information last updated on December 18th, 2025 at 3:48am MST.