Connect

17422 E Arizona Avenue, Aurora, CO – $459,900

  • 4 Beds
  • 4 Baths
  • 2,016 Sqft
  • .14 Acres
  • 4 Beds
  • 4 Baths
  • 2,016 Sqft
  • .14 Acres

New Search X

17422 E Arizona Avenue

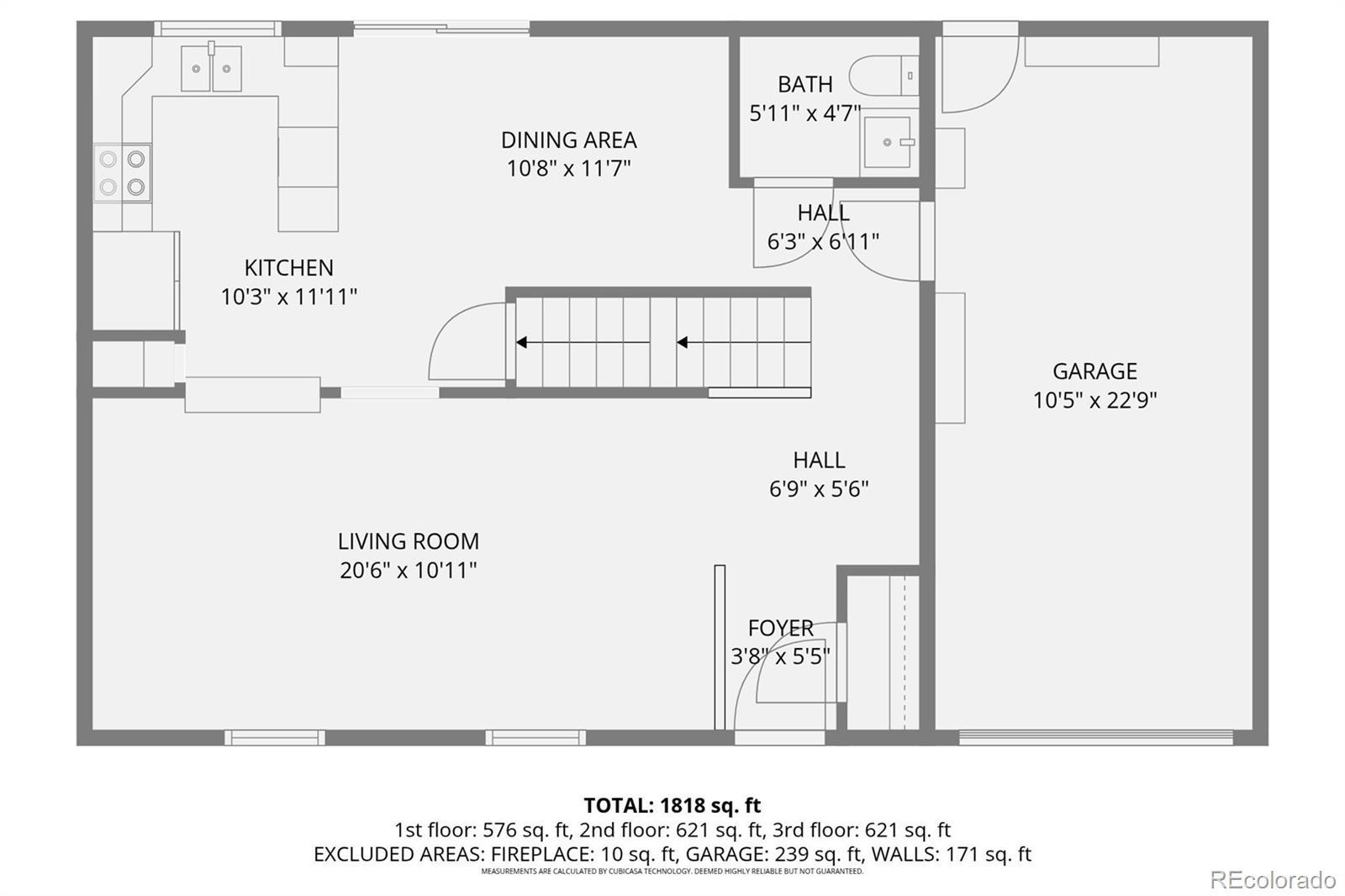
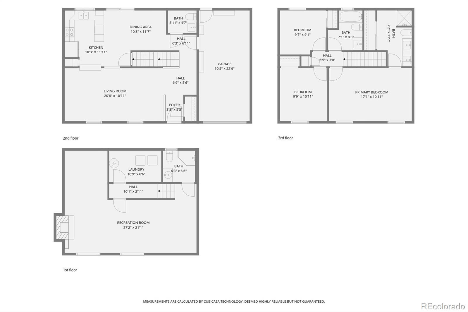
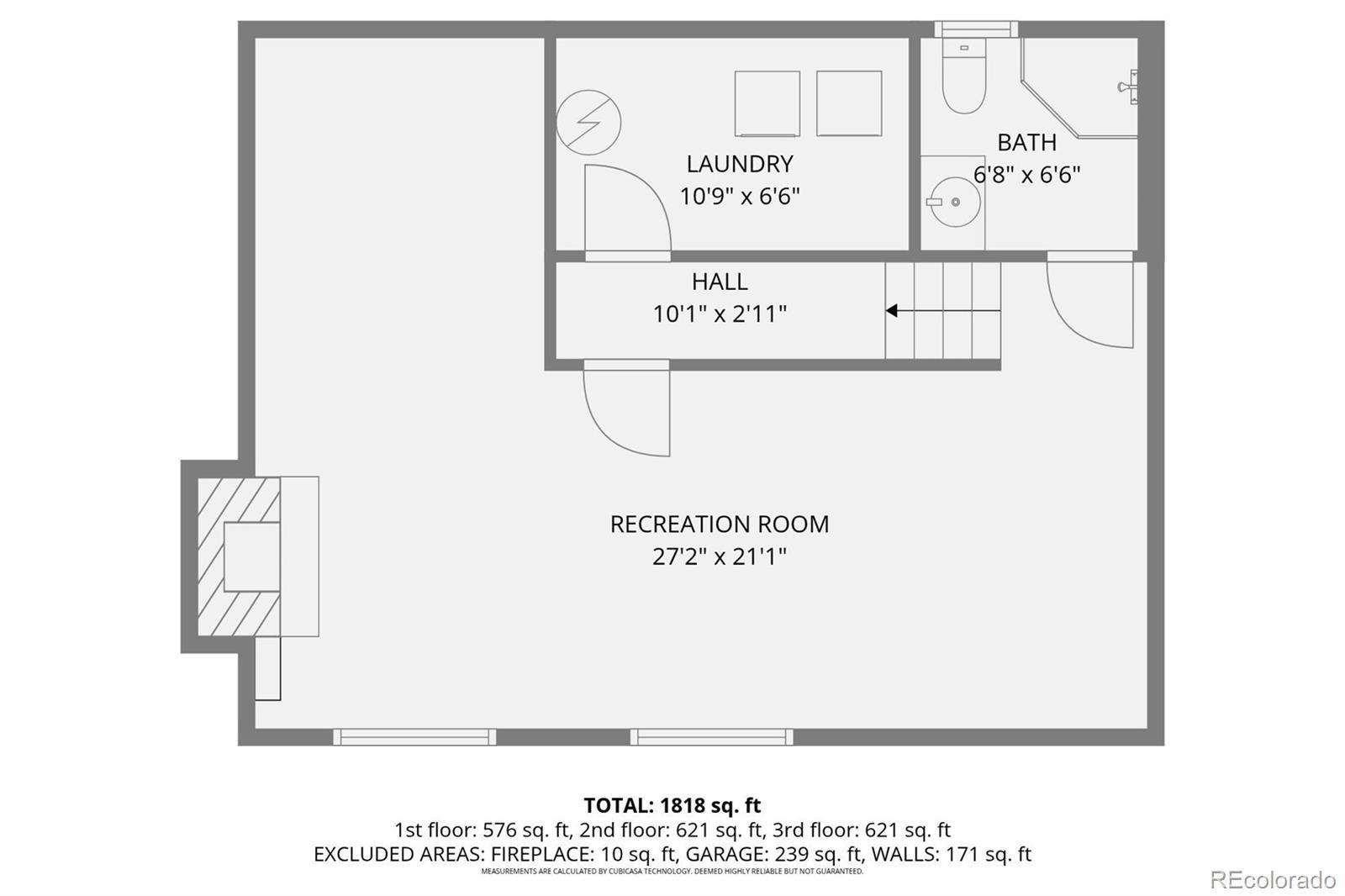
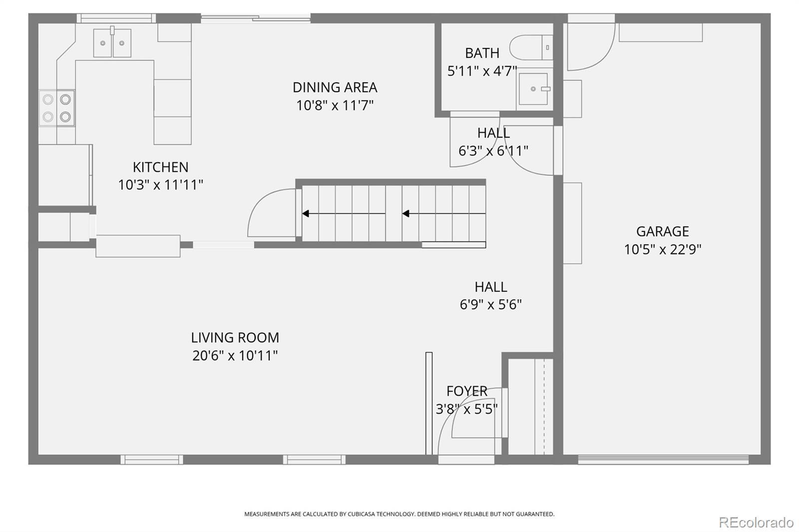
This well-maintained two-story home offers a functional layout, a finished lower level, and thoughtful exterior features that support everyday living. The home has been tastefully updated with modern, clean finishes throughout. A circular driveway and stamped concrete landing at the front entry provide convenient and easy access. Inside, luxury vinyl flooring enhances the main living areas and contributes to a comfortable, practical flow. The main level includes a living room, dining room, and an eat-in kitchen, along with a powder room for guests. The kitchen features updated cabinetry, quartz countertops, a pantry, and space for a breakfast bar. The upper level offers three bedrooms and two bathrooms, including a primary bedroom with an en-suite bathroom and double sinks. The fully finished basement expands the living space and includes a non-conforming room suitable for a home office, guest space, or additional flexible use. The yard is enclosed with a wooden privacy fence. This home is in very good condition with updated windows, newer paint, and newer carpet, and provides versatility with clearly defined living and sleeping areas across two stories. Conveniently located near parks, shopping, dining, and major commuter routes, this property offers both accessibility and livability.

Listing Office: HeReigns Real Estate

Essential Information

  • MLS® #6030628
  • Price$459,900
  • Bedrooms4
  • Bathrooms4.00
  • Full Baths1
  • Half Baths1
  • Square Footage2,016
  • Acres0.14
  • Year Built1979
  • TypeResidential
  • Sub-TypeSingle Family Residence
  • StyleContemporary
  • StatusActive

Community Information

  • Address17422 E Arizona Avenue
  • SubdivisionAurora Highlands
  • CityAurora
  • CountyArapahoe
  • StateCO
  • Zip Code80017

Amenities

  • UtilitiesElectricity Connected
  • Parking Spaces1
  • # of Garages1

Parking

Circular Driveway, Concrete, Exterior Access Door

Interior

  • HeatingBaseboard
  • CoolingNone
  • FireplaceYes
  • # of Fireplaces1
  • FireplacesBasement
  • StoriesTwo

Interior Features

Eat-in Kitchen, Quartz Counters

Appliances

Convection Oven, Dishwasher, Disposal, Electric Water Heater, Microwave, Refrigerator

Exterior

  • Exterior FeaturesPrivate Yard
  • RoofComposition
  • FoundationConcrete Perimeter

Windows

Double Pane Windows, Window Coverings

School Information

  • DistrictAdams-Arapahoe 28J
  • ElementaryArkansas
  • MiddleMrachek
  • HighRangeview

Additional Information

  • Date ListedJanuary 9th, 2026

Listing Details

  • HeReigns Real Estate
Please provide a valid email address.

Terms and Conditions: The content relating to real estate for sale in this Web site comes in part from the Internet Data eXchange ("IDX") program of METROLIST, INC., DBA RECOLORADO® Real estate listings held by brokers other than RE/MAX Professionals are marked with the IDX Logo. This information is being provided for the consumers personal, non-commercial use and may not be used for any other purpose. All information subject to change and should be independently verified.

Copyright 2026 METROLIST, INC., DBA RECOLORADO® -- All Rights Reserved 6455 S. Yosemite St., Suite 500 Greenwood Village, CO 80111 USA

Listing information last updated on January 24th, 2026 at 9:48am MST.