Connect

7518 S Willow Circle, Centennial, CO – $1,023,724

  • 4 Beds
  • 3 Baths
  • 2,936 Sqft
  • .21 Acres
  • 4 Beds
  • 3 Baths
  • 2,936 Sqft
  • .21 Acres

New Search X

7518 S Willow Circle

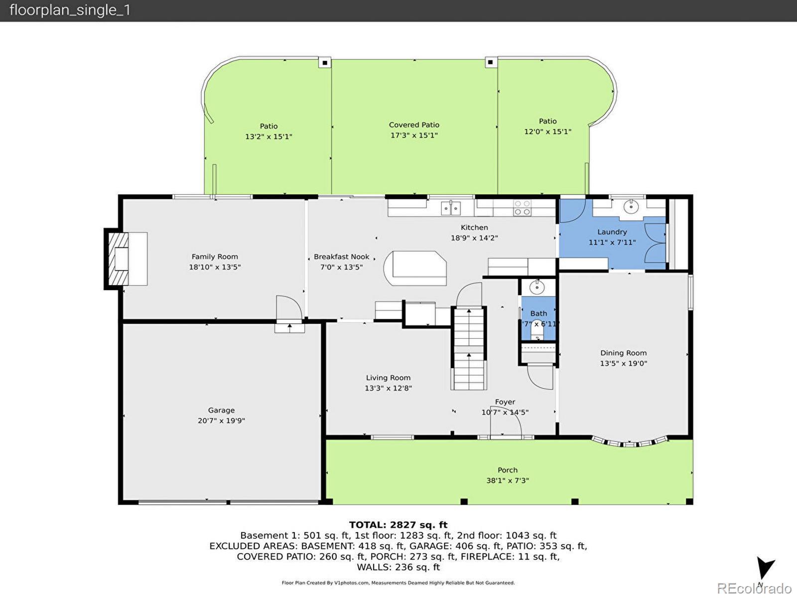
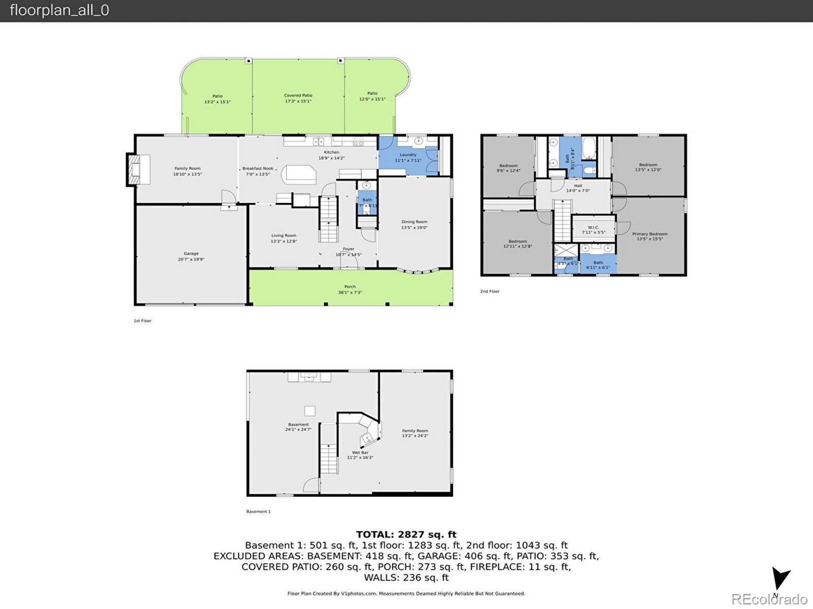
Entertainer’s dream home in Willow Creek backing to HOA green space, featuring a Chef’s kitchen, plentiful living space, and a backyard designed for hosting! Set on a quiet, tree-lined lot, this 4-bed, 3-bath single-owner home has been meticulously maintained, with upgrades and custom touches throughout. A classic Colonial exterior and new faux slate roof create a polished first impression, leading into warm oak hardwood floors and arched doorways that set a refined tone. The formal living room flows into a vaulted family room designed for lively gatherings or cozy movie nights, anchored by a granite-surround gas fireplace. Casual dining connects to the kitchen with glass sliders that open to the covered patio for easy indoor–outdoor hosting. The chef’s kitchen is made for easy weeknight dinners or feeding a crowd with an oversized island, cherry cabinetry, granite countertops, and high-end appliances. The adjacent butler’s pantry connects to the formal dining room, where a five-panel bay window elevates every occasion, with a convenient nearby powder bath. Upstairs, the airy primary suite offers a walk-in closet and spacious en suite with dual sinks, generous storage, and an oversized walk-in shower. Three additional bedrooms with custom closets share a full hall bath. The finished basement extends living space with a large rec room and wet bar—ideal for game nights, movie marathons, or hobbies. Laundry and unfinished space (stubbed for future expansion) provide flexibility, plus a large crawl space for storage. A covered masonry patio with a built-in firepit anchors a backyard designed for gathering, gardening, and play, while a private gate opens directly to park space. Residents of Willow Creek enjoy pools, clubhouses, trails, and sport courts, all just minutes from the Denver Tech Center, South Suburban Golf Course, and Park Meadows. Classic, curated, and exceptionally well cared for, this is Willow Creek living at its finest!

Listing Office: The Steller Group, Inc

Essential Information

  • MLS® #6050953
  • Price$1,023,724
  • Bedrooms4
  • Bathrooms3.00
  • Full Baths1
  • Half Baths1
  • Square Footage2,936
  • Acres0.21
  • Year Built1977
  • TypeResidential
  • Sub-TypeSingle Family Residence
  • StyleTraditional
  • StatusActive

Community Information

  • Address7518 S Willow Circle
  • SubdivisionWillow Creek
  • CityCentennial
  • CountyArapahoe
  • StateCO
  • Zip Code80112

Amenities

  • Parking Spaces2
  • ParkingConcrete, Lighted, Storage
  • # of Garages2

Amenities

Clubhouse, Playground, Pool, Tennis Court(s), Trail(s)

Utilities

Cable Available, Electricity Available, Electricity Connected, Internet Access (Wired), Natural Gas Available, Natural Gas Connected, Phone Available

Interior

  • HeatingForced Air
  • CoolingCentral Air
  • FireplaceYes
  • # of Fireplaces1
  • FireplacesFamily Room, Gas
  • StoriesTwo

Interior Features

Breakfast Bar, Built-in Features, Ceiling Fan(s), Eat-in Kitchen, Entrance Foyer, Granite Counters, High Speed Internet, Kitchen Island, Pantry, Primary Suite, Smoke Free, Vaulted Ceiling(s), Walk-In Closet(s), Wet Bar

Appliances

Bar Fridge, Convection Oven, Cooktop, Dishwasher, Disposal, Double Oven, Gas Water Heater, Humidifier, Microwave, Range Hood, Refrigerator, Smart Appliance(s), Sump Pump

Exterior

  • RoofShake, Slate
  • FoundationConcrete Perimeter

Exterior Features

Fire Pit, Garden, Lighting, Private Yard, Rain Gutters

Lot Description

Landscaped, Many Trees, Master Planned, Near Public Transit, Open Space, Sprinklers In Front, Sprinklers In Rear

Windows

Bay Window(s), Double Pane Windows, Window Coverings, Window Treatments

School Information

  • DistrictCherry Creek 5
  • ElementaryWillow Creek
  • MiddleCampus
  • HighCherry Creek

Additional Information

  • Date ListedFebruary 13th, 2026

Listing Details

  • The Steller Group, Inc
Please provide a valid email address.

Terms and Conditions: The content relating to real estate for sale in this Web site comes in part from the Internet Data eXchange ("IDX") program of METROLIST, INC., DBA RECOLORADO® Real estate listings held by brokers other than RE/MAX Professionals are marked with the IDX Logo. This information is being provided for the consumers personal, non-commercial use and may not be used for any other purpose. All information subject to change and should be independently verified.

Copyright 2026 METROLIST, INC., DBA RECOLORADO® -- All Rights Reserved 6455 S. Yosemite St., Suite 500 Greenwood Village, CO 80111 USA

Listing information last updated on March 7th, 2026 at 1:19am MST.