Connect

24999 Grandview Avenue, Golden, CO – $925,000

  • 2 Beds
  • 3 Baths
  • 2,772 Sqft
  • 2 Acres
  • 2 Beds
  • 3 Baths
  • 2,772 Sqft
  • 2 Acres

New Search X

24999 Grandview Avenue

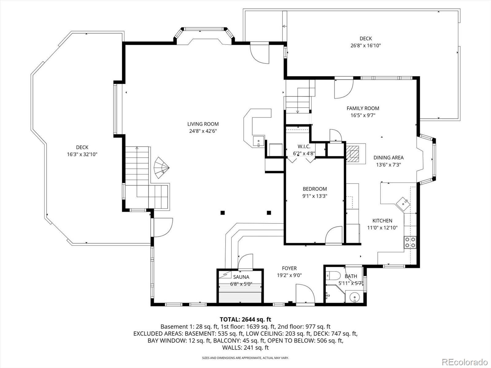
**Stunning mountain retreat with sweeping views and exceptional privacy.** This light-filled home features an open floor plan designed to capture the scenery from every angle. The kitchen and dining area are anchored by a charming wood-burning stove and feature durable, stylish LVP flooring that flows through the kitchen, dining space, and remodeled main-floor bathroom creating a cohesive and low-maintenance living area. The remodeled kitchen showcases stainless steel appliances, quartz countertops, and modern finishes, while the updated main-floor bathroom adds both style and convenience. The expansive living room offers a dramatic entertainment area complete with a wet bar perfect for hosting gatherings or relaxing after a day outdoors. The primary suite includes a private deck to take in the peaceful surroundings and breathtaking sunsets. Enjoy spa-like amenities with a hot tub and sauna, plus upstairs washer and dryer hookups for added flexibility. The home also offers excellent potential to add one or two additional bedrooms, making it ideal for future expansion. Recent improvements include a new well pump and piping and a newer hot water heater. A $7,500 carpet allowance and $7,500 deck allowance allow buyers to personalize the space to their taste. Surrounded by abundant wildlife and close to miles of hiking trails, this private setting feels worlds away while remaining just 10 minutes from Home Depot and Walmart and only 15 minutes to Lakewood. A rare blend of tranquility, views, and convenience this is Colorado living at its best. **Some photos AI enhanced. Some photos are AI generated to show possible additional bedroom configuration. Furniture size and scale may not be accurate.** Buyers are advised to independently verify all information, including but not limited to; sq. ft., features, specs, condition, inclusions, taxes, utilities, lot size, permits, zoning requirements, septic system, wells and any specific use considerations.

Listing Office: Keller Williams Advantage Realty LLC

Essential Information

  • MLS® #6180830
  • Price$925,000
  • Bedrooms2
  • Bathrooms3.00
  • Square Footage2,772
  • Acres2.00
  • Year Built1930
  • TypeResidential
  • Sub-TypeSingle Family Residence
  • StatusPending

Community Information

  • Address24999 Grandview Avenue
  • SubdivisionGenesee
  • CityGolden
  • CountyJefferson
  • StateCO
  • Zip Code80401

Amenities

  • Parking Spaces1
  • # of Garages1
  • ViewMountain(s)

Interior

  • HeatingRadiant Floor
  • CoolingNone
  • FireplaceYes
  • # of Fireplaces1
  • FireplacesWood Burning Stove
  • StoriesTwo

Interior Features

High Ceilings, Open Floorplan, Primary Suite, Quartz Counters, Vaulted Ceiling(s), Walk-In Closet(s)

Appliances

Dishwasher, Microwave, Range, Refrigerator

Exterior

  • Lot DescriptionMany Trees
  • WindowsBay Window(s)
  • RoofComposition

School Information

  • DistrictJefferson County R-1
  • ElementaryRalston
  • MiddleBell
  • HighGolden

Additional Information

  • Date ListedJanuary 28th, 2026
  • ZoningA-2

Listing Details

Keller Williams Advantage Realty LLC

Please provide a valid email address.

Terms and Conditions: The content relating to real estate for sale in this Web site comes in part from the Internet Data eXchange ("IDX") program of METROLIST, INC., DBA RECOLORADO® Real estate listings held by brokers other than RE/MAX Professionals are marked with the IDX Logo. This information is being provided for the consumers personal, non-commercial use and may not be used for any other purpose. All information subject to change and should be independently verified.

Copyright 2026 METROLIST, INC., DBA RECOLORADO® -- All Rights Reserved 6455 S. Yosemite St., Suite 500 Greenwood Village, CO 80111 USA

Listing information last updated on February 10th, 2026 at 9:49pm MST.