Connect

7995 E Mississippi Avenue A12, Denver, CO – $2,100

  • $2.1k Price
  • 2 Beds
  • 2 Baths
  • 1,142 Sqft
  • $2.1k Price
  • 2 Beds
  • 2 Baths
  • 1,142 Sqft

New Search X

7995 E Mississippi Avenue A12

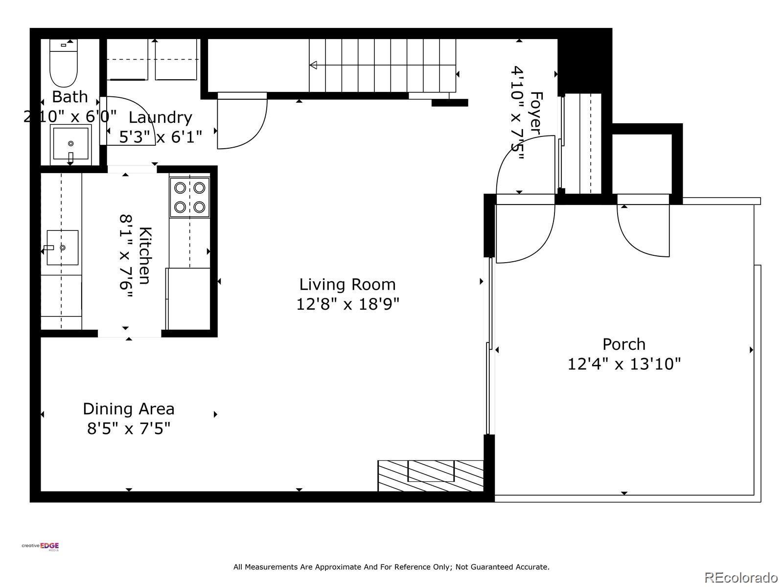
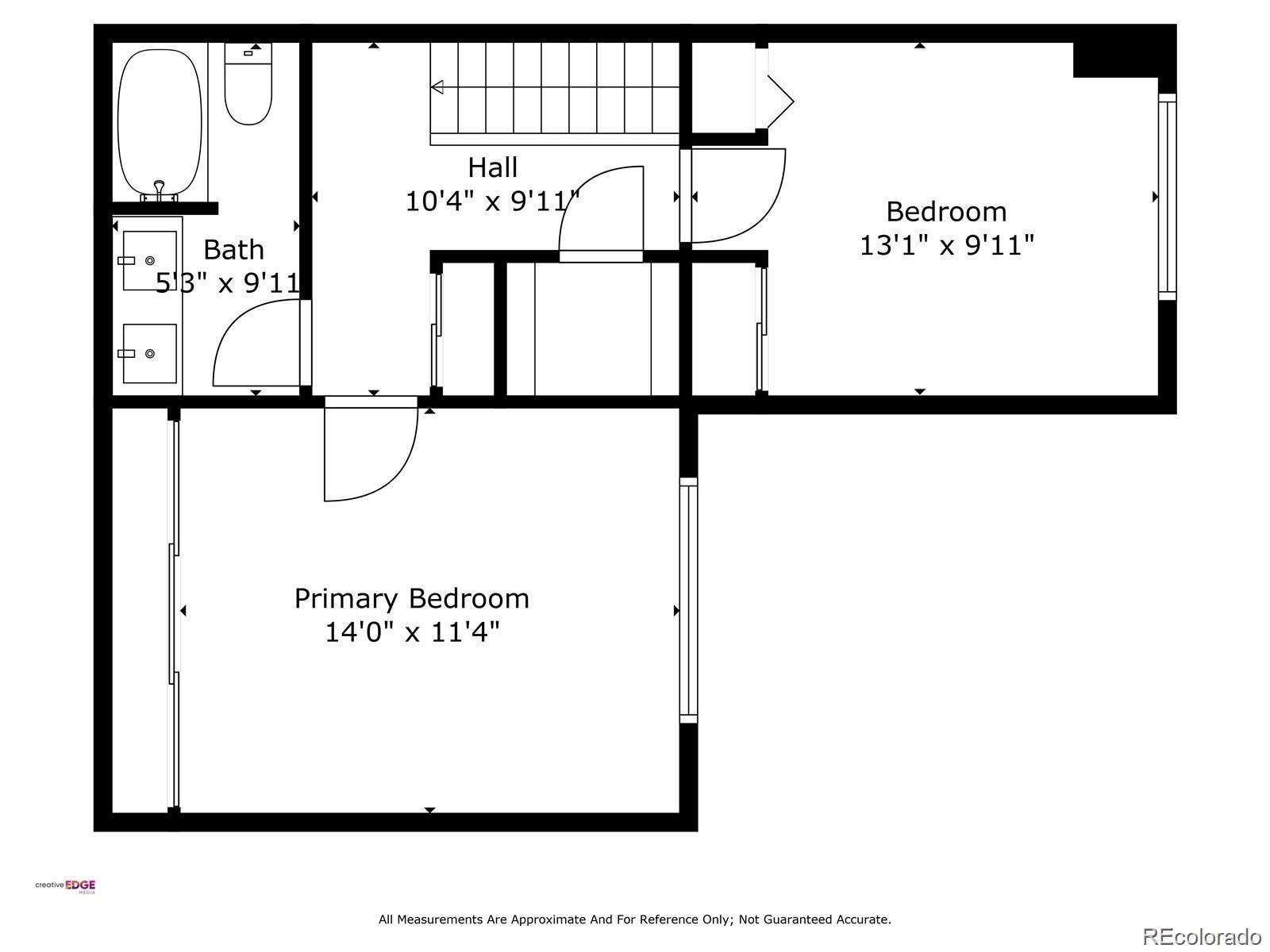
Welcome home to this immaculate two-story townhome in Denver, available for 6-month or longer leases. With 1,142 square feet of thoughtfully designed living space, this modernized home offers comfort, style, and flexibility. Inside, you’ll find fresh updates throughout, including new flooring, granite kitchen countertops, quartz bathroom surfaces, and the convenience of in-unit laundry. The main level features an open-concept layout with a spacious kitchen, dedicated dining area, and inviting living room—perfect for relaxing or entertaining. A half bath and full-size washer and dryer complete the first floor. Upstairs, enjoy a versatile bonus space ideal for a home office, reading nook, or creative studio. The second level also includes two generously sized bedrooms and a large full bathroom with a double vanity for added convenience. Furnishings are negotiable based on tenant needs, making this home an excellent option for those seeking flexibility—whether relocating, working remotely, or settling into Denver for an extended stay. An assigned parking spot near the unit is reserved for the tenant. Water and trash are included in the lease amount; electricity, gas and internet is separate. Contact us today to learn more or schedule a showing! Denver Residential Rental License #2026-BFN-0004620

Listing Office: Strategic Real Estate and Development Services

Essential Information

  • MLS® #6423266
  • Price$2,100
  • Bedrooms2
  • Bathrooms2.00
  • Full Baths1
  • Half Baths1
  • Square Footage1,142
  • Acres0.00
  • Year Built1973
  • TypeResidential Lease
  • Sub-TypeTownhouse
  • StatusActive

Community Information

  • Address7995 E Mississippi Avenue A12
  • SubdivisionHiland Hills
  • CityDenver
  • CountyDenver
  • StateCO
  • Zip Code80247

Amenities

  • AmenitiesClubhouse, Pool
  • Parking Spaces3
  • ParkingGuest
  • Has PoolYes
  • PoolIndoor

Interior

  • CoolingCentral Air
  • FireplaceYes
  • # of Fireplaces1
  • StoriesTwo

Interior Features

Breakfast Bar, Entrance Foyer, Granite Counters, Quartz Counters, Walk-In Closet(s)

Appliances

Dishwasher, Dryer, Microwave, Oven, Refrigerator, Washer

Exterior

  • Exterior FeaturesPrivate Yard

School Information

  • DistrictDenver 1
  • ElementaryDenver Green
  • MiddleDenver Green
  • HighGeorge Washington

Additional Information

  • Date ListedMarch 3rd, 2026

Listing Details

Strategic Real Estate and Development Services

Please provide a valid email address.

Terms and Conditions: The content relating to real estate for sale in this Web site comes in part from the Internet Data eXchange ("IDX") program of METROLIST, INC., DBA RECOLORADO® Real estate listings held by brokers other than RE/MAX Professionals are marked with the IDX Logo. This information is being provided for the consumers personal, non-commercial use and may not be used for any other purpose. All information subject to change and should be independently verified.

Copyright 2026 METROLIST, INC., DBA RECOLORADO® -- All Rights Reserved 6455 S. Yosemite St., Suite 500 Greenwood Village, CO 80111 USA

Listing information last updated on March 5th, 2026 at 2:49pm MST.