Connect

2222 Valentia Street, Denver, CO – $390,000

  • 1 Bed
  • 2 Baths
  • 1,133 Sqft
  • .02 Acres
  • 1 Bed
  • 2 Baths
  • 1,133 Sqft
  • .02 Acres

New Search X

2222 Valentia Street

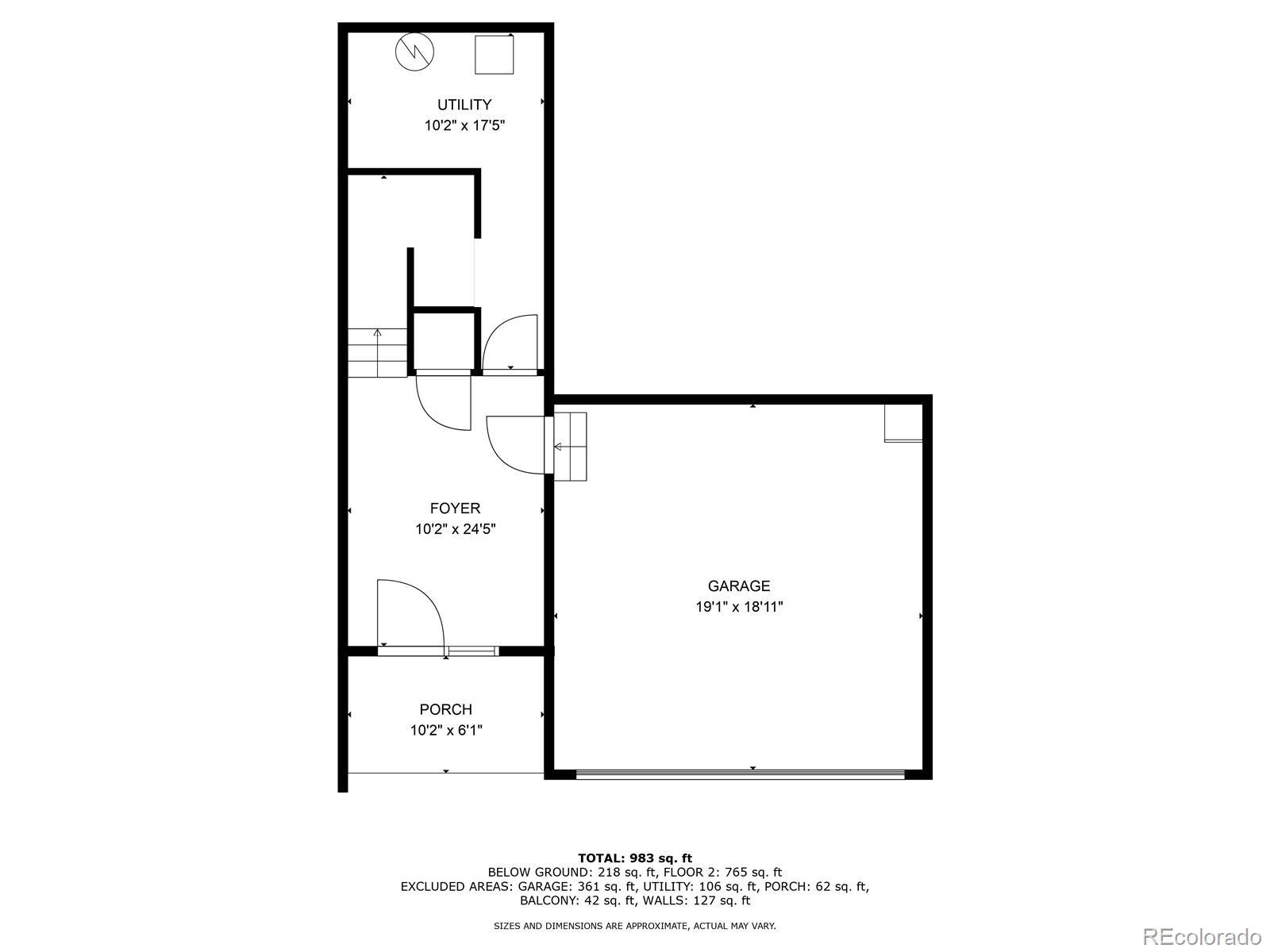
Filled with natural light, this Central Park townhome delivers everyday ease and a walk-anywhere lifestyle. The entry level includes a handy office and an attached two-car garage with storage plus a 220V outlet for EV charging. On the second level, wood floors anchor a comfortable living room that opens to a small balcony, a spacious kitchen/dining area, and a convenient powder bath. The primary bedroom features a large walk-in closet and a full en-suite bath. Bonus: the in-unit washer and dryer are included. From your door, you’re a short stroll to Stanley Marketplace, Mici Italian, indoor rock climbing, the TOCA Sports Center, GreenWay Park + Dog Park, and just one block from Montview Middle School. Working at the Anschutz Medical Campus? It’s about a 6-minute drive. Come live the Central Park lifestyle at an affordable price.

Listing Office: Century 21 Elevated Real Estate

Essential Information

  • MLS® #6558935
  • Price$390,000
  • Bedrooms1
  • Bathrooms2.00
  • Full Baths1
  • Half Baths1
  • Square Footage1,133
  • Acres0.02
  • Year Built2007
  • TypeResidential
  • Sub-TypeTownhouse
  • StyleUrban Contemporary
  • StatusActive

Community Information

  • Address2222 Valentia Street
  • SubdivisionCentral Park
  • CityDenver
  • CountyDenver
  • StateCO
  • Zip Code80238

Amenities

  • Parking Spaces2
  • ParkingConcrete
  • # of Garages2

Amenities

Park, Playground, Pool, Tennis Court(s), Trail(s)

Utilities

Cable Available, Electricity Connected, Internet Access (Wired), Natural Gas Connected, Phone Available

Interior

  • HeatingForced Air, Natural Gas
  • CoolingCentral Air
  • StoriesTwo

Interior Features

Eat-in Kitchen, Entrance Foyer, Open Floorplan, Walk-In Closet(s)

Appliances

Dishwasher, Dryer, Oven, Range, Refrigerator, Washer

Exterior

  • Exterior FeaturesBalcony
  • WindowsDouble Pane Windows
  • RoofConcrete

Lot Description

Landscaped, Near Public Transit

School Information

  • DistrictDenver 1
  • ElementaryWesterly Creek
  • MiddleDenver Discovery
  • HighNorthfield

Additional Information

  • Date ListedSeptember 11th, 2025
  • ZoningR-MU-20

Listing Details

Century 21 Elevated Real Estate

Please provide a valid email address.

Terms and Conditions: The content relating to real estate for sale in this Web site comes in part from the Internet Data eXchange ("IDX") program of METROLIST, INC., DBA RECOLORADO® Real estate listings held by brokers other than RE/MAX Professionals are marked with the IDX Logo. This information is being provided for the consumers personal, non-commercial use and may not be used for any other purpose. All information subject to change and should be independently verified.

Copyright 2025 METROLIST, INC., DBA RECOLORADO® -- All Rights Reserved 6455 S. Yosemite St., Suite 500 Greenwood Village, CO 80111 USA

Listing information last updated on December 23rd, 2025 at 8:48am MST.