Connect

4756 N Wildflowers Way, Castle Rock, CO – $695,000

  • 5 Beds
  • 3 Baths
  • 3,055 Sqft
  • .17 Acres
  • 5 Beds
  • 3 Baths
  • 3,055 Sqft
  • .17 Acres

New Search X

4756 N Wildflowers Way

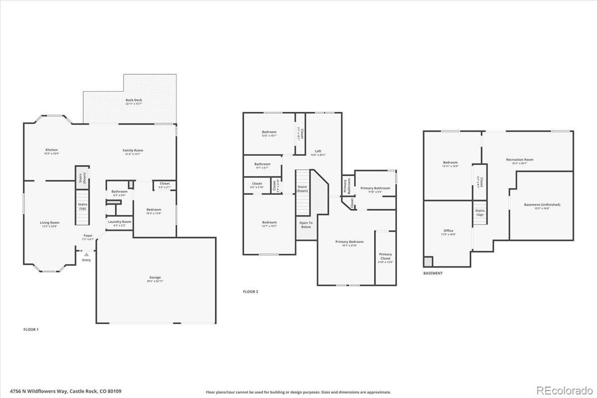
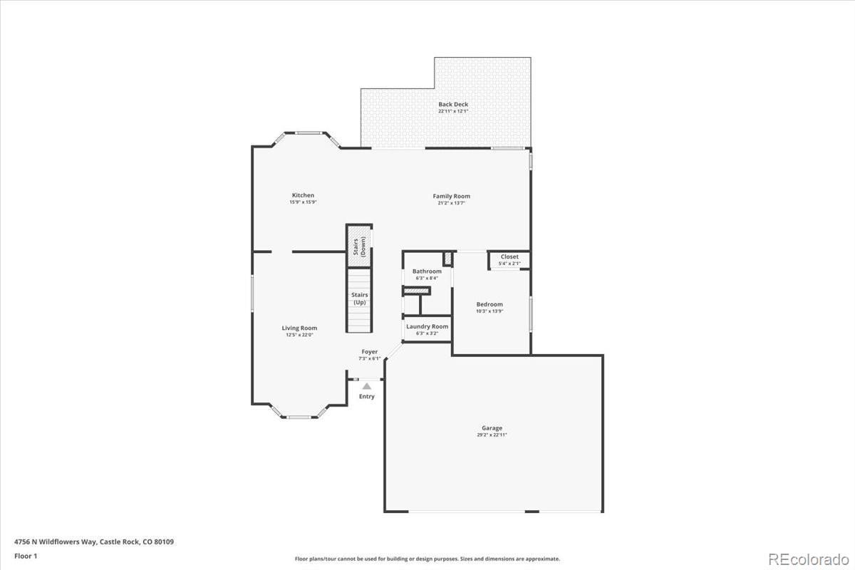
Experience the incredible Castle Rock lifestyle in this stunning five-bedroom, three-bathroom residence located in The Meadows. Location is everything here, and you’ll love being centrally located just a quick hop, skip, and a jump away from all three local schools, making the morning school run the easiest part of your day. This home is fully equipped to handle every Colorado season in style, from the powerful attic-fan cooling you down in the summer to your private hot tub heating you up in the crisp winter. Rest assured, you won’t be worried about the longevity of the Roof, Water Heater, HVAC and other systems as they have all been either recently replaced or are far from their life expectancy. The expansive primary suite serves as a true sanctuary, boasting a roomy layout and a walk-in closet. The primary bath is designed for relaxation with plenty of space and a large soaking tub. You'll also spy a hidden magical laundry chute that sends clothes directly to the main-floor laundry room. It’s a total game-changer for your daily chores! With five full bedrooms, including one on the main floor, there is plenty of space for a growing family, a home office, or a guest room for the grandparents, while the layout ensures everyone still has their own private corner (or charming loft space) to relax in. Storage and outdoor living are where this property truly shines, starting with the massive three-car garage that offers ample room for vehicles and all your Colorado gear. The finished walk-out basement includes a giant storage area to keep your life organized and opens up to an impressive backyard oasis. Outside, you will find an elevated deck perfect for entertaining, overlooking a giant yard, a rare find in The Meadows. Whether you are hosting a summer BBQ or getting a head start on the planting season, this home offers the perfect backdrop for making lasting memories in one of Castle Rock’s most vibrant communities. https://tinyurl.com/428k67bv

Listing Office: eXp Realty, LLC

Essential Information

  • MLS® #6644733
  • Price$695,000
  • Bedrooms5
  • Bathrooms3.00
  • Full Baths2
  • Square Footage3,055
  • Acres0.17
  • Year Built1992
  • TypeResidential
  • Sub-TypeSingle Family Residence
  • StyleTraditional
  • StatusActive

Community Information

  • Address4756 N Wildflowers Way
  • SubdivisionThe Meadows
  • CityCastle Rock
  • CountyDouglas
  • StateCO
  • Zip Code80109

Amenities

  • Parking Spaces3
  • ParkingConcrete, Lighted
  • # of Garages3

Utilities

Electricity Connected, Natural Gas Connected

Interior

  • HeatingForced Air, Natural Gas
  • CoolingAttic Fan, Central Air
  • StoriesTwo

Interior Features

Ceiling Fan(s), Eat-in Kitchen, Five Piece Bath, Open Floorplan, Primary Suite, Quartz Counters, Radon Mitigation System, Smart Thermostat, Smoke Free, Hot Tub, Vaulted Ceiling(s), Walk-In Closet(s)

Appliances

Dishwasher, Disposal, Dryer, Freezer, Gas Water Heater, Humidifier, Microwave, Oven, Refrigerator, Washer

Exterior

  • RoofShingle
  • FoundationSlab

Exterior Features

Dog Run, Garden, Private Yard, Rain Gutters, Spa/Hot Tub

Lot Description

Sprinklers In Front, Sprinklers In Rear

Windows

Bay Window(s), Double Pane Windows

School Information

  • DistrictDouglas RE-1
  • ElementaryMeadow View
  • MiddleCastle Rock
  • HighCastle View

Additional Information

  • Date ListedJanuary 22nd, 2026

Listing Details

  • eXp Realty, LLC
Please provide a valid email address.

Terms and Conditions: The content relating to real estate for sale in this Web site comes in part from the Internet Data eXchange ("IDX") program of METROLIST, INC., DBA RECOLORADO® Real estate listings held by brokers other than RE/MAX Professionals are marked with the IDX Logo. This information is being provided for the consumers personal, non-commercial use and may not be used for any other purpose. All information subject to change and should be independently verified.

Copyright 2026 METROLIST, INC., DBA RECOLORADO® -- All Rights Reserved 6455 S. Yosemite St., Suite 500 Greenwood Village, CO 80111 USA

Listing information last updated on January 31st, 2026 at 8:18am MST.