Connect

34 Piute Circle, Florissant, CO – $650,000

  • 5 Beds
  • 3 Baths
  • 3,425 Sqft
  • 4.22 Acres
  • 5 Beds
  • 3 Baths
  • 3,425 Sqft
  • 4.22 Acres

New Search X

34 Piute Circle

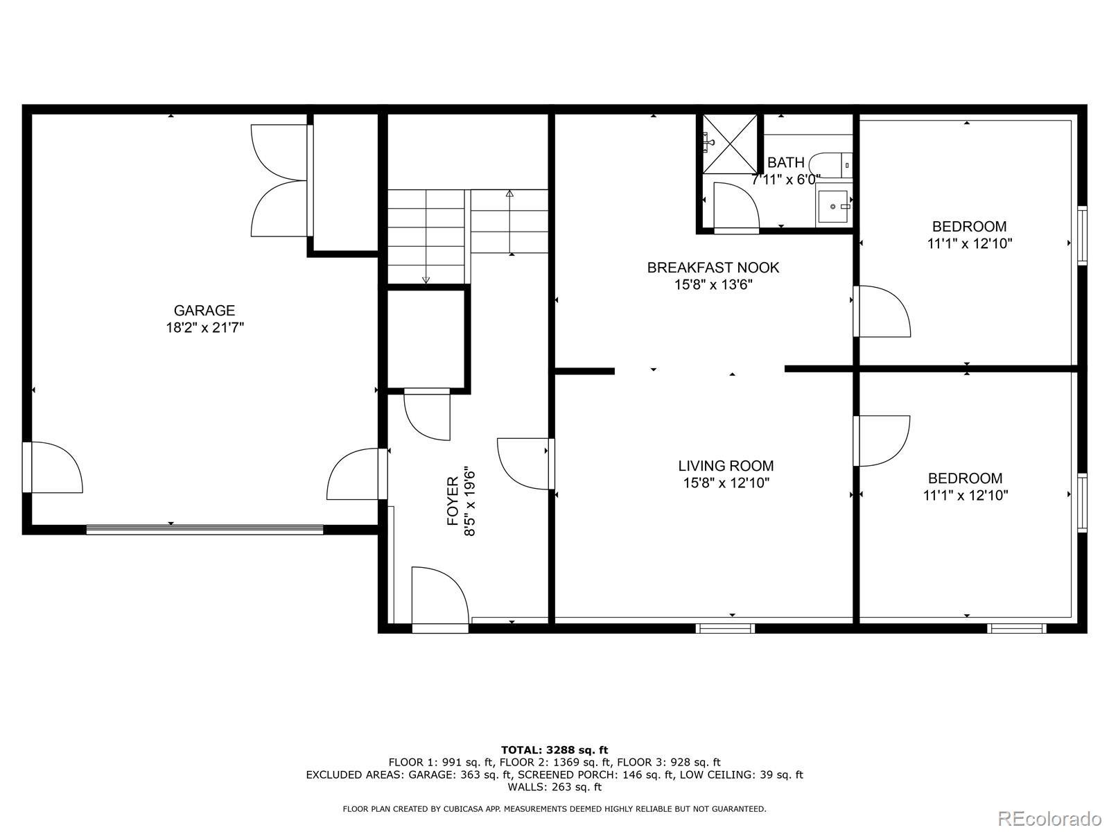
Step Back in Time with This One-of-a-Kind Country Farmhouse! Experience the charm of mountain living in this beautifully handcrafted country home, nestled on a stunning, usable lot. Constructed with solid wood and finished in wood siding, the home features a striking array of paned windows that flood the space with natural light. Inside, rustic character shines through with wide plank wood floors, custom cabinetry, and thoughtful vintage-inspired finishes. Soaring cathedral ceilings enhance the sense of space, while the oversized kitchen is perfect for entertaining—with room for a large dining table, abundant cabinetry and counter space, and a cozy free-standing gas fireplace. Step out onto the spacious, screened enclosed back porch—ideal for outdoor dining and year-round enjoyment. The main level offers two bedrooms, a full bath, a comfortable living room, an office, and a generous laundry room. Upstairs, you'll find a private retreat in the expansive primary suite, complete with a massive walk-in closet, full bath, free-standing gas fireplace, charming dormer windows, and a private office or sitting area. The walk-out lower level adds incredible versatility with a huge great room, two additional bedrooms (no closets but room to add), and a ¾ bath. Whether you envision a home theater, game room, or entertainment space with a bar and fridge, this area offers limitless possibilities. Outside, enjoy unique features like a heated bunkhouse, a whimsical decorative 'outhouse' storage shed, gazebo, and hobby farm area with a chicken coop and barnyard setup. This beautiful farm-style house is ready for you to move in and make it your own. Located in a recreation-rich area, you'll have access to gold medal fishing, hunting, hiking, off-roading, horseback riding, rock climbing, and more. Don't miss this rare opportunity to own a piece of mountain charm with timeless character and modern comfort.

Listing Office: High Country Realty

Essential Information

  • MLS® #6682855
  • Price$650,000
  • Bedrooms5
  • Bathrooms3.00
  • Full Baths2
  • Square Footage3,425
  • Acres4.22
  • Year Built1998
  • TypeResidential
  • Sub-TypeSingle Family Residence
  • StyleCottage
  • StatusPending

Community Information

  • Address34 Piute Circle
  • SubdivisionIndian Creek
  • CityFlorissant
  • CountyTeller
  • StateCO
  • Zip Code80816

Amenities

  • Parking Spaces1
  • ParkingGravel, Lighted
  • # of Garages1
  • ViewMeadow, Mountain(s)

Utilities

Electricity Connected, Phone Connected, Propane

Interior

  • HeatingForced Air, Propane
  • CoolingNone
  • FireplaceYes
  • # of Fireplaces2
  • StoriesThree Or More

Interior Features

Butcher Counters, Ceiling Fan(s), Eat-in Kitchen, Entrance Foyer, Granite Counters, High Ceilings, Primary Suite, Smoke Free, Vaulted Ceiling(s), Walk-In Closet(s)

Appliances

Dishwasher, Dryer, Gas Water Heater, Humidifier, Microwave, Range, Refrigerator, Washer

Fireplaces

Gas, Great Room, Kitchen, Primary Bedroom

Exterior

  • Exterior FeaturesPrivate Yard, Rain Gutters
  • WindowsWindow Coverings
  • RoofShingle
  • FoundationSlab

Lot Description

Fire Mitigation, Many Trees, Sloped

School Information

  • DistrictWoodland Park RE-2
  • ElementarySummit
  • MiddleWoodland Park
  • HighWoodland Park

Additional Information

  • Date ListedJuly 2nd, 2025
  • ZoningR-1M

Listing Details

  • High Country Realty
Please provide a valid email address.

Terms and Conditions: The content relating to real estate for sale in this Web site comes in part from the Internet Data eXchange ("IDX") program of METROLIST, INC., DBA RECOLORADO® Real estate listings held by brokers other than RE/MAX Professionals are marked with the IDX Logo. This information is being provided for the consumers personal, non-commercial use and may not be used for any other purpose. All information subject to change and should be independently verified.

Copyright 2026 METROLIST, INC., DBA RECOLORADO® -- All Rights Reserved 6455 S. Yosemite St., Suite 500 Greenwood Village, CO 80111 USA

Listing information last updated on January 26th, 2026 at 10:03am MST.