Connect

5284 Braun Street, Arvada, CO – $563,000

  • 4 Beds
  • 3 Baths
  • 1,888 Sqft
  • .21 Acres
  • 4 Beds
  • 3 Baths
  • 1,888 Sqft
  • .21 Acres

New Search X

5284 Braun Street

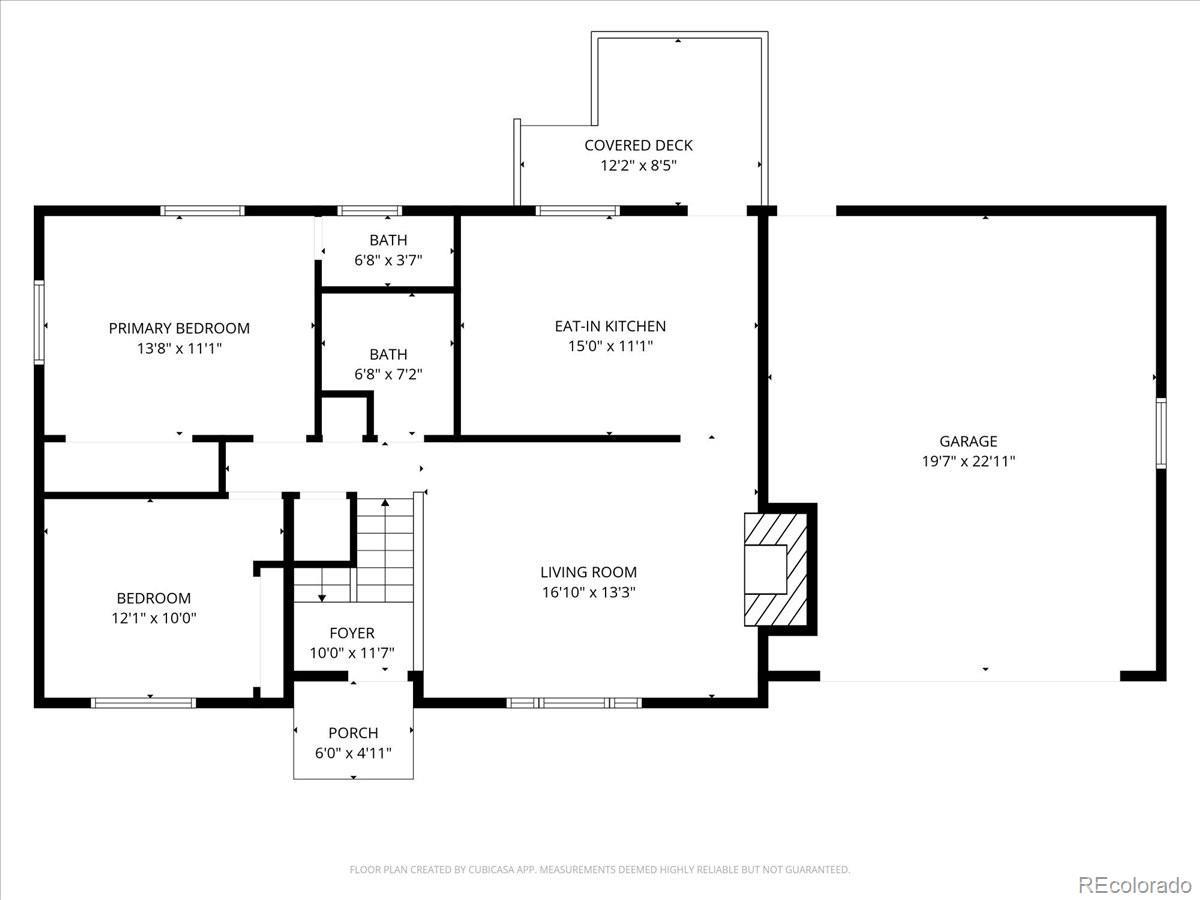
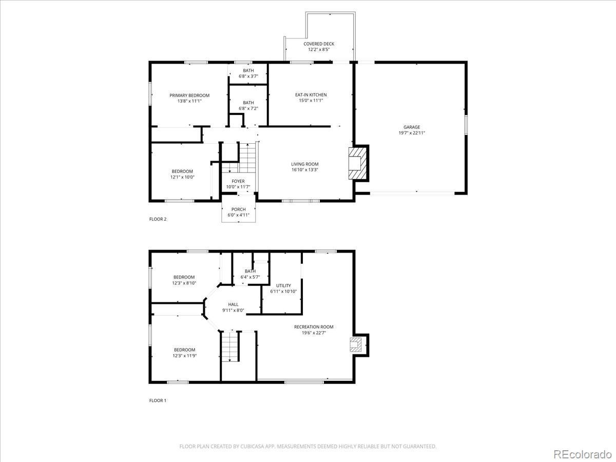
Wonderful Opportunity Near Van Bibber Open Space! This 4-bedroom, 3-bathroom home is situated in the highly coveted Appleridge Estates. The fresh new paint has been done just waiting for your vision for new flooring, and a kitchen refresh—this property offers an outstanding opportunity and is priced to sell. Key recent updates besides all new interior paint, include a newer furnace (4 yr), Evaporative Cooler (3 yr), deck (3 yr) with an electric retractable awning, and sprinkler system in the front and back (3 yr), providing immediate peace of mind. The interior boasts 4 bedrooms and 3 bathrooms including one in the primary bedroom suite. There is plenty of space with a fireplace in the living room and another in the family room. The beautiful backyard features an outbuilding workshop or toy storage, a great garden shed, and wonderful garden area. Enjoy the best of both worlds with a serene, rural feel in unincorporated Jeffco, just a short walk (3.5 blocks) to Van Bibber Park trail access. This sought-after location is conveniently close to great schools, shopping, Olde Town Arvada, Golden, and offers easy access to the mountains and Downtown Denver. Home is being sold strictly As-Is.

Listing Office: Keller Williams Avenues Realty

Essential Information

  • MLS® #7136117
  • Price$563,000
  • Bedrooms4
  • Bathrooms3.00
  • Full Baths1
  • Square Footage1,888
  • Acres0.21
  • Year Built1972
  • TypeResidential
  • Sub-TypeSingle Family Residence
  • StatusPending

Community Information

  • Address5284 Braun Street
  • SubdivisionAppleridge Estates
  • CityArvada
  • CountyJefferson
  • StateCO
  • Zip Code80002

Amenities

  • Parking Spaces3
  • # of Garages2

Interior

  • HeatingForced Air
  • CoolingEvaporative Cooling
  • FireplaceYes
  • # of Fireplaces2
  • StoriesBi-Level

Interior Features

Ceiling Fan(s), Eat-in Kitchen, Laminate Counters, Primary Suite, Smoke Free

Appliances

Dishwasher, Microwave, Oven, Refrigerator

Fireplaces

Family Room, Insert, Living Room, Wood Burning

Exterior

  • Exterior FeaturesGarden, Private Yard
  • Lot DescriptionLandscaped, Level
  • RoofComposition

Windows

Double Pane Windows, Storm Window(s)

School Information

  • DistrictJefferson County R-1
  • ElementaryFairmount
  • MiddleDrake
  • HighArvada West

Additional Information

  • Date ListedNovember 10th, 2025
  • ZoningR-1A

Listing Details

  • Keller Williams Avenues Realty
Please provide a valid email address.

Terms and Conditions: The content relating to real estate for sale in this Web site comes in part from the Internet Data eXchange ("IDX") program of METROLIST, INC., DBA RECOLORADO® Real estate listings held by brokers other than RE/MAX Professionals are marked with the IDX Logo. This information is being provided for the consumers personal, non-commercial use and may not be used for any other purpose. All information subject to change and should be independently verified.

Copyright 2025 METROLIST, INC., DBA RECOLORADO® -- All Rights Reserved 6455 S. Yosemite St., Suite 500 Greenwood Village, CO 80111 USA

Listing information last updated on December 11th, 2025 at 6:48am MST.