Connect

4665 Gaylord Street, Denver, CO – $675,000

  • 5 Beds
  • 2 Baths
  • 3,134 Sqft
  • .14 Acres
  • 5 Beds
  • 2 Baths
  • 3,134 Sqft
  • .14 Acres

New Search X

4665 Gaylord Street

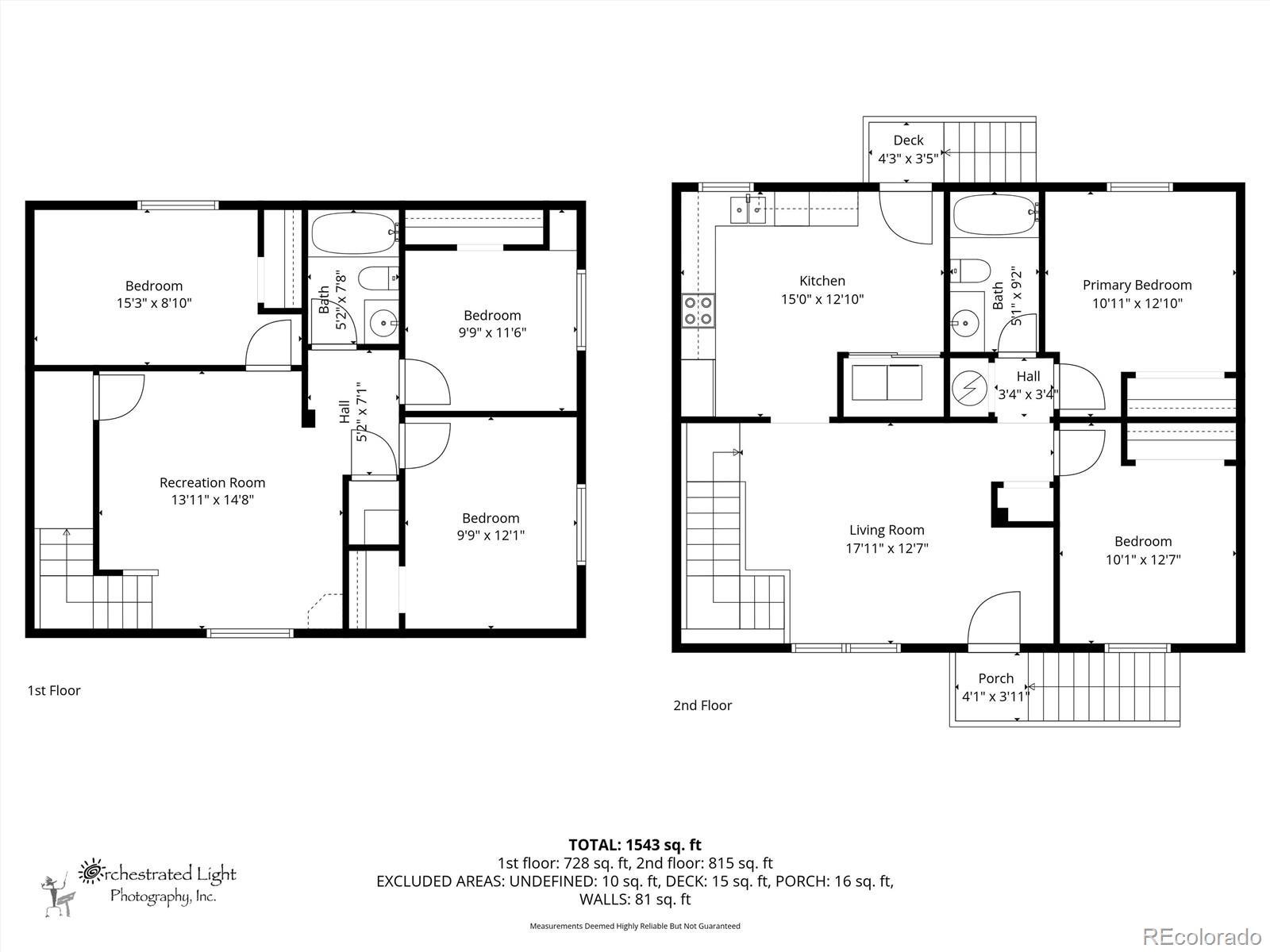
• 10-bed duplex • Two 5-bed units • Fully leased • In-place income with upside • Suitable for DSCR or 1031 strategies Income-producing Denver duplex with two oversized 5-bedroom units (10 bedrooms total) and approx. 3,134 sq ft of total living area. Both units are now leased, providing immediate stabilized income. One unit is leased at $3,000/month with documented payment history. The second unit is leased to a non–Section 8 tenant at $2,095/month, with lease commencement February 6. Seller-provided pro forma reflects current in-place rents totaling $5,095/month ($61,140 annually), representing an estimated 9.06% gross cap rate at a $675,000 purchase price. A full stabilization scenario based on updated Housing Authority payment standards supports total rents of $8,630/month ($103,560 annually), or an estimated 15.34% gross cap rate. Buyer to independently verify all income, rent projections, and operating assumptions. 2025 property taxes are approximately $1,975.28. Seller reports a recent total monthly payment (PITI) of approximately $3,782.96; buyer financing, terms, and expenses will vary. Zoning is E-TU-B (Urban Edge), offering flexibility for long-term hold or alternative income strategies, subject to buyer verification of use. Property is positioned in an established rental corridor with access to major employment centers, transit routes, and central Denver amenities. Suitable for investors seeking current cash flow with documented upside potential. NEARBY AMENITIES • ~0.6 mi to National Western Complex • ~1.2 mi to RiNo Art District • ~1.5 mi to Mission Ballroom • ~1.8 mi to Downtown Denver • Quick access to I-70 and I-25 corridors

Listing Office: Real Broker, LLC DBA Real

Essential Information

  • MLS® #7155437
  • Price$675,000
  • Bedrooms5
  • Bathrooms2.00
  • Square Footage3,134
  • Acres0.14
  • Year Built2000
  • TypeResidential Income
  • Sub-TypeDuplex
  • StatusActive

Community Information

  • Address4665 Gaylord Street
  • SubdivisionSwansea
  • CityDenver
  • CountyDenver
  • StateCO
  • Zip Code80216

Amenities

  • Parking Spaces4

Interior

  • HeatingForced Air
  • CoolingNone
  • StoriesTwo

Exterior

  • Lot DescriptionLevel
  • RoofComposition

School Information

  • DistrictDenver 1
  • ElementarySwansea
  • MiddleBruce Randolph
  • HighManual

Additional Information

  • Date ListedDecember 3rd, 2025
  • ZoningE-TU-B

Listing Details

  • Real Broker, LLC DBA Real
Please provide a valid email address.

Terms and Conditions: The content relating to real estate for sale in this Web site comes in part from the Internet Data eXchange ("IDX") program of METROLIST, INC., DBA RECOLORADO® Real estate listings held by brokers other than RE/MAX Professionals are marked with the IDX Logo. This information is being provided for the consumers personal, non-commercial use and may not be used for any other purpose. All information subject to change and should be independently verified.

Copyright 2026 METROLIST, INC., DBA RECOLORADO® -- All Rights Reserved 6455 S. Yosemite St., Suite 500 Greenwood Village, CO 80111 USA

Listing information last updated on February 1st, 2026 at 8:33am MST.