Connect

2949 S Biscay Street, Aurora, CO – $465,000

  • 4 Beds
  • 3 Baths
  • 2,236 Sqft
  • .18 Acres
  • 4 Beds
  • 3 Baths
  • 2,236 Sqft
  • .18 Acres

New Search X

2949 S Biscay Street

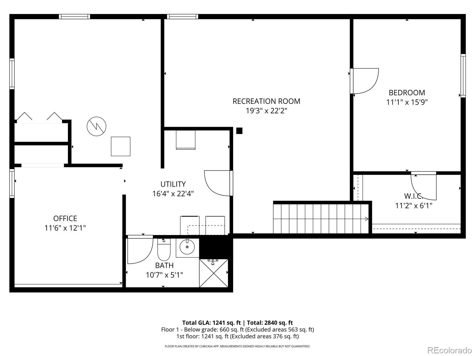
Short Sale Opportunity - Tucked away at the end of a quiet cul-de-sac, this well-maintained ranch offers a functional layout and flexible living spaces throughout. The main level includes three bedrooms, highlighted by a private primary suite with an updated ¾ bath, plus a full hall bath. The spacious living room features durable wood-plank flooring and flows into the kitchen, which connects to an adjacent dining area with sliding doors that open to a fully fenced backyard and concrete patio—perfect for outdoor enjoyment. Downstairs, the finished basement expands the living space with a large family room, a fourth bedroom complete with an egress window and generous walk-in closet, a bonus room ideal for a home office or additional non-conforming bedroom, a ¾ bath, utility area, and a dedicated laundry room. An attached two-car garage provides direct access into the kitchen, and additional RV parking is available alongside the driveway.Conveniently located near dining, shopping, Quincy Reservoir, Buckley Space Force Base, major commuter routes including I-225 and E-470, Denver International Airport, and the Denver Tech Center, this home offers both comfort and accessibility.

Listing Office: HomeSmart

Essential Information

  • MLS® #7416878
  • Price$465,000
  • Bedrooms4
  • Bathrooms3.00
  • Full Baths1
  • Square Footage2,236
  • Acres0.18
  • Year Built1976
  • TypeResidential
  • Sub-TypeSingle Family Residence
  • StatusActive

Community Information

  • Address2949 S Biscay Street
  • SubdivisionSeven Lakes
  • CityAurora
  • CountyArapahoe
  • StateCO
  • Zip Code80013

Amenities

  • Parking Spaces2
  • ParkingConcrete
  • # of Garages2

Interior

  • HeatingForced Air
  • CoolingCentral Air
  • StoriesOne

Interior Features

Ceiling Fan(s), Open Floorplan

Appliances

Dishwasher, Range, Refrigerator

Exterior

  • Lot DescriptionLevel
  • RoofComposition
  • FoundationConcrete Perimeter

School Information

  • DistrictCherry Creek 5
  • ElementaryArrowhead
  • MiddleHorizon
  • HighEaglecrest

Additional Information

  • Date ListedJanuary 9th, 2026
  • Short SaleYes

Listing Details

  • HomeSmart
Please provide a valid email address.

Terms and Conditions: The content relating to real estate for sale in this Web site comes in part from the Internet Data eXchange ("IDX") program of METROLIST, INC., DBA RECOLORADO® Real estate listings held by brokers other than RE/MAX Professionals are marked with the IDX Logo. This information is being provided for the consumers personal, non-commercial use and may not be used for any other purpose. All information subject to change and should be independently verified.

Copyright 2026 METROLIST, INC., DBA RECOLORADO® -- All Rights Reserved 6455 S. Yosemite St., Suite 500 Greenwood Village, CO 80111 USA

Listing information last updated on January 24th, 2026 at 1:18am MST.