Connect

7178 S Versailles Street, Aurora, CO – $600,000

  • 2 Beds
  • 2 Baths
  • 1,788 Sqft
  • .2 Acres
  • 2 Beds
  • 2 Baths
  • 1,788 Sqft
  • .2 Acres

New Search X

7178 S Versailles Street

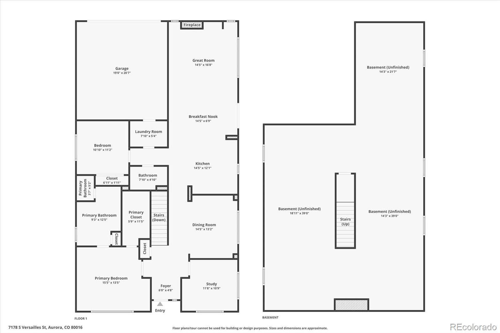
COMING SOON! FABULOUS LOW MAINTENANCE RANCH in the Star Pass community at Saddle Rock Golf Club! Approximately 3,576 total sq ft includes 1,788 beautifully finished sq ft on the main floor plus a full basement with multiple egress & garden level windows. The vaulted ceilings & walls of windows showcase the beautiful wide plank wood flooring & the generously sized rooms. There's an abundance of natural cherry cabinets & storage in the updated kitchen with large seating/serving island, quartz counters, full height tile backsplash, composite farm sink, & stainless appliances. The kitchen & breakfast nook open to the living room with full length mantle over the quartz fireplace surround & built in shelves. The formal dining room/flex space is stunning with high ceiling, wall of windows, updated light fixture and space to seat a crowd. Working from home? You'll appreciate the main floor study overlooking the front entry & large yard - easy to convert to a 3rd main floor bedroom. The luxurious primary retreat encourages relaxation – with stunning walk-in shower, oversized jetted tub, & ample counter and storage space. A second main floor bedroom, updated bath with shower, & main floor laundry with sink, cabinets, & included washer & dryer complete the main floor. Recent updates/features include white oak engineered hardwood flooring & high quality carpet/pad, updated light fixtures & ceiling fans, plantation shutters, newer furnace & A/C, newer roof, garage door, & exterior paint; Rachio sprinkler controller & water efficient sprinkler heads. This property has one of the larger lots in the neighborhood; the lot can be fenced, patio size can be increased. Low HOA fees ($202/month) include landscape maintenance, snow removal (3+ inches), trash, recycling, 2 community pools, tennis courts, parks, trails & clubhouse. Top ranked Cherry Creek Schools include Grandview High. Convenient to DIA, DTC, E470, shopping & recreation. Schedule a tour & make this home yours!

Listing Office: Compass - Denver

Essential Information

  • MLS® #7692984
  • Price$600,000
  • Bedrooms2
  • Bathrooms2.00
  • Full Baths1
  • Square Footage1,788
  • Acres0.20
  • Year Built2001
  • TypeResidential
  • Sub-TypeSingle Family Residence
  • StyleContemporary
  • StatusComing Soon

Community Information

  • Address7178 S Versailles Street
  • SubdivisionSaddle Rock East, Star Pass
  • CityAurora
  • CountyArapahoe
  • StateCO
  • Zip Code80016

Amenities

  • Parking Spaces2
  • ParkingDry Walled, Lighted
  • # of Garages2

Amenities

Clubhouse, Park, Playground, Pool, Tennis Court(s), Trail(s)

Utilities

Electricity Connected, Internet Access (Wired), Natural Gas Connected, Phone Available

Interior

  • HeatingForced Air, Natural Gas
  • CoolingCentral Air
  • FireplaceYes
  • # of Fireplaces1
  • FireplacesGas, Living Room
  • StoriesOne

Interior Features

Breakfast Bar, Built-in Features, Ceiling Fan(s), Eat-in Kitchen, Five Piece Bath, High Ceilings, High Speed Internet, Kitchen Island, Open Floorplan, Pantry, Primary Suite, Quartz Counters, Smoke Free, Vaulted Ceiling(s), Walk-In Closet(s), Wired for Data

Appliances

Convection Oven, Dishwasher, Disposal, Dryer, Microwave, Oven, Refrigerator, Self Cleaning Oven, Sump Pump, Washer

Exterior

  • RoofComposition
  • FoundationStructural

Exterior Features

Garden, Private Yard, Rain Gutters

Lot Description

Corner Lot, Irrigated, Landscaped, Level, Sprinklers In Front, Sprinklers In Rear

Windows

Double Pane Windows, Window Coverings

School Information

  • DistrictCherry Creek 5
  • ElementaryCreekside
  • MiddleLiberty
  • HighCherokee Trail

Additional Information

  • Date ListedFebruary 14th, 2026

Listing Details

  • Compass - Denver
Please provide a valid email address.

Terms and Conditions: The content relating to real estate for sale in this Web site comes in part from the Internet Data eXchange ("IDX") program of METROLIST, INC., DBA RECOLORADO® Real estate listings held by brokers other than RE/MAX Professionals are marked with the IDX Logo. This information is being provided for the consumers personal, non-commercial use and may not be used for any other purpose. All information subject to change and should be independently verified.

Copyright 2026 METROLIST, INC., DBA RECOLORADO® -- All Rights Reserved 6455 S. Yosemite St., Suite 500 Greenwood Village, CO 80111 USA

Listing information last updated on February 16th, 2026 at 9:18am MST.