Connect

4206 S Halifax Way, Aurora, CO – $400,000

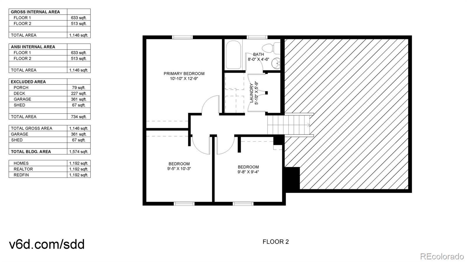
  • 3 Beds
  • 1 Bath
  • 1,192 Sqft
  • .12 Acres
  • 3 Beds
  • 1 Bath
  • 1,192 Sqft
  • .12 Acres

New Search X

4206 S Halifax Way

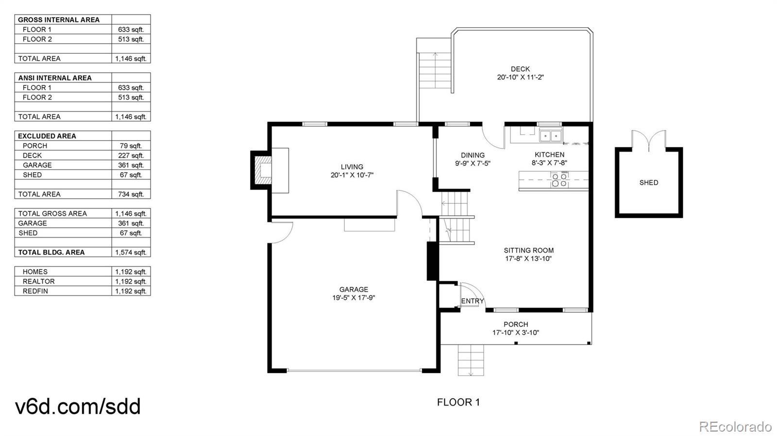
Welcome to this beautifully updated 3-bedroom, 1-bath home in a prime location within the highly regarded Cherry Creek School District—one of Colorado's top-rated districts, known for excellent academics and family-friendly communities. Step inside to discover a bright and inviting interior filled with abundant natural light pouring through large windows throughout the home. Recent updates bring modern comfort and style, including fresh finishes, updated fixtures, and a clean, move-in-ready feel that makes everyday living effortless. The functional layout offers three spacious bedrooms perfect for families, guests, or a home office, along with a well-appointed bathroom. The open living areas flow seamlessly, creating a welcoming space for relaxing or entertaining. One of the standout features is the expansive backyard—a true outdoor oasis with plenty of room for gardening, play, pets, or simply unwinding. The large deck extends your living space outdoors, ideal for morning coffee, summer barbecues, or evening gatherings under the stars. Conveniently located with easy access to schools, parks, shopping, dining, and major commuter routes, this home combines suburban tranquility with urban accessibility in the Denver metro area. Don't miss this rare opportunity to own a refreshed, light-filled home in a sought-after school district with exceptional outdoor space. Schedule your showing today

Listing Office: Kentwood Real Estate Cherry Creek

Essential Information

  • MLS® #8564632
  • Price$400,000
  • Bedrooms3
  • Bathrooms1.00
  • Full Baths1
  • Square Footage1,192
  • Acres0.12
  • Year Built1985
  • TypeResidential
  • Sub-TypeSingle Family Residence
  • StatusPending

Community Information

  • Address4206 S Halifax Way
  • SubdivisionHigh Point
  • CityAurora
  • CountyArapahoe
  • StateCO
  • Zip Code80013

Amenities

  • Parking Spaces2
  • # of Garages2

Interior

  • Interior FeaturesOpen Floorplan, Smoke Free
  • HeatingForced Air
  • CoolingCentral Air
  • FireplaceYes
  • # of Fireplaces1
  • FireplacesFamily Room
  • StoriesThree Or More

Appliances

Dishwasher, Disposal, Dryer, Gas Water Heater, Microwave, Oven, Refrigerator, Washer

Exterior

  • Exterior FeaturesGarden
  • WindowsDouble Pane Windows
  • RoofComposition
  • FoundationSlab

School Information

  • DistrictCherry Creek 5
  • ElementarySunrise
  • MiddleHorizon
  • HighEaglecrest

Additional Information

  • Date ListedFebruary 26th, 2026

Listing Details

Kentwood Real Estate Cherry Creek

Please provide a valid email address.

Terms and Conditions: The content relating to real estate for sale in this Web site comes in part from the Internet Data eXchange ("IDX") program of METROLIST, INC., DBA RECOLORADO® Real estate listings held by brokers other than RE/MAX Professionals are marked with the IDX Logo. This information is being provided for the consumers personal, non-commercial use and may not be used for any other purpose. All information subject to change and should be independently verified.

Copyright 2026 METROLIST, INC., DBA RECOLORADO® -- All Rights Reserved 6455 S. Yosemite St., Suite 500 Greenwood Village, CO 80111 USA

Listing information last updated on March 10th, 2026 at 2:48am MDT.