Connect

2330 Wedgewood Avenue, Longmont, CO – $950,000

  • 8 Beds
  • 4 Baths
  • 3,646 Sqft
  • .19 Acres
  • 8 Beds
  • 4 Baths
  • 3,646 Sqft
  • .19 Acres

New Search X

2330 Wedgewood Avenue

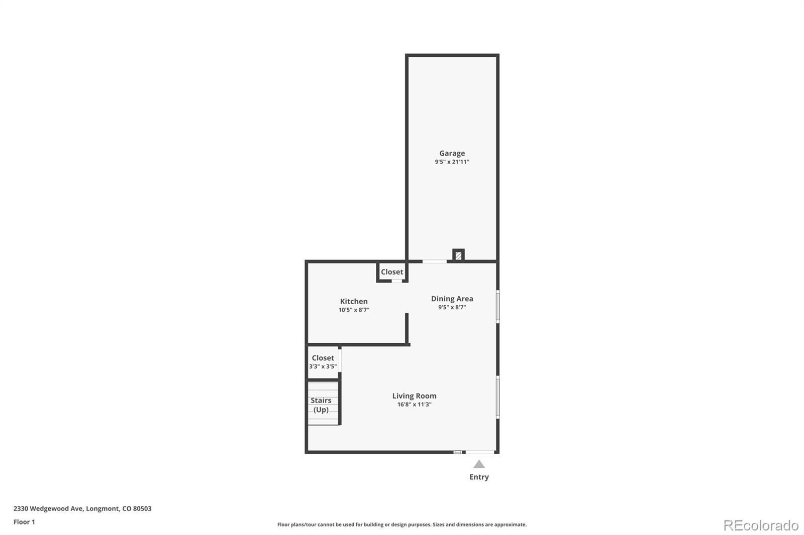
Discover this well-maintained four-plex, ideally located just off Hover Street and close to some of Longmont’s most beloved outdoor spaces—including McIntosh Lake, Dawson Park, Garden Acres Park, and more. Each of the four units offers a functional 2-bedroom/1-bathroom layout, making them highly desirable for tenants seeking comfort and convenience. Residents will appreciate the added benefit of both a 1-car attached garage and a 1-car exterior parking space for each unit—an outstanding feature rarely found in similar multi-family properties. The building also includes a shared basement laundry area, complete with individual hookups for each unit. This property is Building 4 within a 14-building complex and is part of an HOA that provides valuable services such as, common courtyard space and playground maintenance, and snow removal all the way up to each unit’s sidewalk—reducing ownership hassles and keeping the community looking its best. The Sellers have kept the building in great condition, and the roof was just replaced in 2024, offering peace of mind for years to come. Whether you’re expanding your portfolio or investing for the first time, this Longmont property delivers consistent rental appeal, thoughtful updates, and a truly desirable location.

Listing Office: Wisdom Real Estate

Essential Information

  • MLS® #9412544
  • Price$950,000
  • Bedrooms8
  • Bathrooms4.00
  • Square Footage3,646
  • Acres0.19
  • Year Built1978
  • TypeResidential Income
  • Sub-TypeQuadruplex
  • StatusActive

Community Information

  • Address2330 Wedgewood Avenue
  • SubdivisionLongmont Village
  • CityLongmont
  • CountyBoulder
  • StateCO
  • Zip Code80503

Amenities

  • AmenitiesPlayground
  • Parking Spaces8
  • ParkingConcrete
  • # of Garages4

Utilities

Electricity Available, Electricity Connected, Natural Gas Available, Natural Gas Connected, Phone Available

Interior

  • HeatingForced Air, Natural Gas
  • CoolingCentral Air
  • StoriesTwo

Interior Features

Ceiling Fan(s), Laminate Counters

Appliances

Dishwasher, Gas Water Heater, Oven, Range, Refrigerator

Exterior

  • RoofComposition

School Information

  • DistrictSt. Vrain Valley RE-1J
  • ElementaryHygiene
  • MiddleWestview
  • HighLongmont

Additional Information

  • Date ListedDecember 12th, 2025

Listing Details

  • Wisdom Real Estate
Please provide a valid email address.

Terms and Conditions: The content relating to real estate for sale in this Web site comes in part from the Internet Data eXchange ("IDX") program of METROLIST, INC., DBA RECOLORADO® Real estate listings held by brokers other than RE/MAX Professionals are marked with the IDX Logo. This information is being provided for the consumers personal, non-commercial use and may not be used for any other purpose. All information subject to change and should be independently verified.

Copyright 2025 METROLIST, INC., DBA RECOLORADO® -- All Rights Reserved 6455 S. Yosemite St., Suite 500 Greenwood Village, CO 80111 USA

Listing information last updated on December 19th, 2025 at 7:33am MST.