Connect

2324 Calais Drive A, Longmont, CO – $575,000

  • 4 Beds
  • 4 Baths
  • 3,158 Sqft
  • .18 Acres
  • 4 Beds
  • 4 Baths
  • 3,158 Sqft
  • .18 Acres

New Search X

2324 Calais Drive A

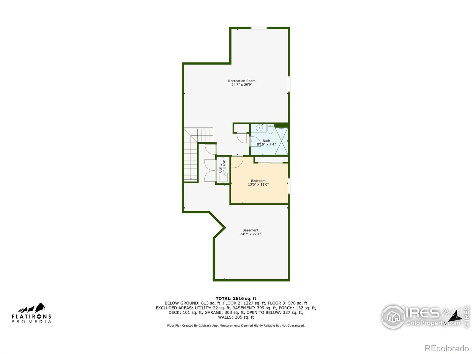
$10,000 Seller Concession for rate buydown /closing costs. Highly desirable main-floor living with primary suite and bath, laundry, and a versatile office/flex room -- all on one level. This 4 bedrooms, 3.5 baths Boulder Creek Revel Three model offers a thoughtfully designed floor plan. Upstairs, find two guest bedrooms, a full bath, and a spacious loft, while the finished basement features a large great room, additional bedroom, and bath-perfect for guests or entertaining.Enjoy low-maintenance, energy-efficient living with beautiful natural light, soaring ceilings, and stunning upgrades throughout, including quartz countertops, plantation shutters, hardwood flooring, iron baluster stair railing, and upgraded lighting and hardware. The kitchen, dining, and living areas flow seamlessly, with a tankless water heater, surround-sound wiring, and internet access throughout for comfort and convenience. Relax on the back deck with a built-in gas line for grilling while overlooking the walking path and Ute Creek Golf Course. Complete with a 2-car attached garage, this meticulously maintained home is move-in ready.

Listing Office: RE/MAX Elevate

Essential Information

  • MLS® #IR1042858
  • Price$575,000
  • Bedrooms4
  • Bathrooms4.00
  • Full Baths1
  • Half Baths1
  • Square Footage3,158
  • Acres0.18
  • Year Built2014
  • TypeResidential
  • Sub-TypeCondominium
  • StatusActive

Community Information

  • Address2324 Calais Drive A
  • SubdivisionPinnacle Condos Ph 16
  • CityLongmont
  • CountyBoulder
  • StateCO
  • Zip Code80504

Amenities

  • AmenitiesGolf Course, Trail(s)
  • Parking Spaces2
  • # of Garages2

Utilities

Cable Available, Internet Access (Wired), Natural Gas Available

Interior

  • HeatingForced Air
  • CoolingCentral Air
  • StoriesTwo

Interior Features

Eat-in Kitchen, Kitchen Island, Open Floorplan, Vaulted Ceiling(s), Walk-In Closet(s)

Appliances

Dishwasher, Disposal, Dryer, Microwave, Oven, Refrigerator, Self Cleaning Oven, Washer

Exterior

  • Exterior FeaturesGas Grill
  • Lot DescriptionOn Golf Course
  • WindowsWindow Coverings
  • RoofComposition

School Information

  • DistrictSt. Vrain Valley RE-1J
  • ElementaryAlpine
  • MiddleTimberline
  • HighSkyline

Additional Information

  • Date ListedSeptember 4th, 2025
  • ZoningRes

Listing Details

  • RE/MAX Elevate
Please provide a valid email address.

Terms and Conditions: The content relating to real estate for sale in this Web site comes in part from the Internet Data eXchange ("IDX") program of METROLIST, INC., DBA RECOLORADO® Real estate listings held by brokers other than RE/MAX Professionals are marked with the IDX Logo. This information is being provided for the consumers personal, non-commercial use and may not be used for any other purpose. All information subject to change and should be independently verified.

Copyright 2025 METROLIST, INC., DBA RECOLORADO® -- All Rights Reserved 6455 S. Yosemite St., Suite 500 Greenwood Village, CO 80111 USA

Listing information last updated on December 25th, 2025 at 12:03am MST.