Connect

12788 Sheramdi Street, Longmont, CO – $849,000

  • 3 Beds
  • 2 Baths
  • 1,702 Sqft
  • .83 Acres
  • 3 Beds
  • 2 Baths
  • 1,702 Sqft
  • .83 Acres

New Search X

12788 Sheramdi Street

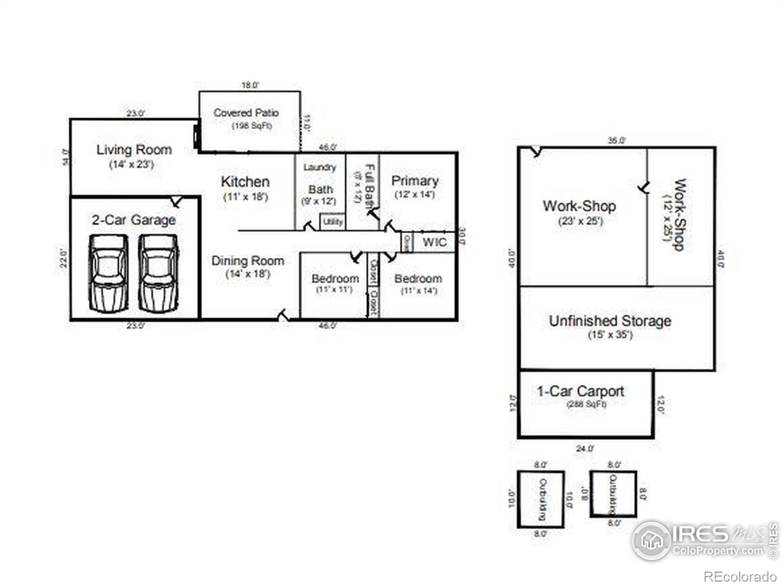
First Time Ever on the Market! Welcome to this rare gem in desirable North Longmont- with no HOA, no covenants and no metro district. This home that offers the tranquility of country living along with an extra 1400sf of workshop (complete with heating and cooling) and adjacent storage space large enough for 2 vehicles; while still just a short drive to shops, restaurants, and everyday conveniences. Nestled on a generous lot just under an acre, this property provides the space, privacy, and freedom you won't find in typical suburban neighborhoods. Inside, discover gleaming hardwood floors and custom-milled baseboards that highlight the home's quality construction. The renovated, spacious kitchen is the heart of the home-beautifully designed with ample soft-close cabinetry and quartz counter tops, ideal for everyday living and entertaining. Outdoors, the property truly shines. In addition to the covered patio, mature trees and expansive yard, you'll find two large shops, two storage sheds, and a carport sized for an RV-perfect for projects, hobbies, equipment, or recreational vehicles. With its Rural Residential zoning, the property provides flexibility for a variety of uses while still being just minutes from Longmont's vibrant downtown, schools, and conveniences. This one-of-a-kind property has never before been offered for sale. Don't miss the opportunity to enjoy a lifestyle that's more open, spacious, and connected to Colorado living.

Listing Office: Compass - Boulder

Essential Information

  • MLS® #IR1045721
  • Price$849,000
  • Bedrooms3
  • Bathrooms2.00
  • Full Baths1
  • Square Footage1,702
  • Acres0.83
  • Year Built1973
  • TypeResidential
  • Sub-TypeSingle Family Residence
  • StatusActive

Community Information

  • Address12788 Sheramdi Street
  • SubdivisionAnhawa Manor 3
  • CityLongmont
  • CountyBoulder
  • StateCO
  • Zip Code80503

Amenities

  • Parking Spaces6
  • ParkingRV Access/Parking
  • # of Garages6

Utilities

Cable Available, Electricity Available, Internet Access (Wired), Natural Gas Available

Interior

  • Interior FeaturesNo Stairs, Open Floorplan
  • HeatingForced Air
  • CoolingCentral Air
  • FireplaceYes
  • FireplacesLiving Room
  • StoriesOne

Appliances

Dishwasher, Dryer, Microwave, Oven, Refrigerator, Washer

Exterior

  • WindowsWindow Coverings
  • RoofComposition

Lot Description

Level, Open Space, Sprinklers In Front

School Information

  • DistrictSt. Vrain Valley RE-1J
  • ElementaryHygiene
  • MiddleWestview
  • HighLongmont

Additional Information

  • Date ListedOctober 17th, 2025
  • ZoningRR

Listing Details

  • Compass - Boulder
Please provide a valid email address.

Terms and Conditions: The content relating to real estate for sale in this Web site comes in part from the Internet Data eXchange ("IDX") program of METROLIST, INC., DBA RECOLORADO® Real estate listings held by brokers other than RE/MAX Professionals are marked with the IDX Logo. This information is being provided for the consumers personal, non-commercial use and may not be used for any other purpose. All information subject to change and should be independently verified.

Copyright 2025 METROLIST, INC., DBA RECOLORADO® -- All Rights Reserved 6455 S. Yosemite St., Suite 500 Greenwood Village, CO 80111 USA

Listing information last updated on December 18th, 2025 at 11:18am MST.