Connect

3327 Sentinel Drive, Boulder, CO – $895,000

  • 4 Beds
  • 4 Baths
  • 2,205 Sqft
  • .09 Acres
  • 4 Beds
  • 4 Baths
  • 2,205 Sqft
  • .09 Acres

New Search X

3327 Sentinel Drive

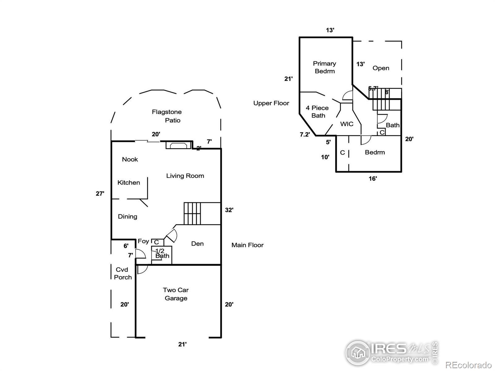
The property is currently leased through April 1. Tenants have expressed interest in staying but can vacate at lease end. Furniture shown is virtually staged; the home's condition and finishes are accurately represented. Welcome to 3327 Sentinel Drive, a thoughtfully maintained residence tucked away on a quiet cul-de-sac in Boulder's sought-after Northcreek subdivision. Warm and inviting, the home features solid oak hardwood floors and a well-designed floor plan offering approximately 2,300 square feet of flexible living space. The updated kitchen includes solid surface countertops, stainless steel appliances, and a modern tile backsplash. Several bathrooms have been updated with stone slab countertops and/or new tile finishes. The living room is comfortable and spacious, featuring vaulted ceilings, upgraded lighting, ceiling fans, and a fireplace accented by a stone slab surround. The layout accommodates a variety of needs, including a finished basement guest suite and a main-floor office or fourth bedroom. Outdoors, professionally designed flower gardens, mature trees, and a private flagstone patio create an ideal indoor-outdoor living environment. A programmable irrigation system services both the front and back yards, for ease of maintenance year-round. Additional features include upgraded plumbing fixtures, an active radon mitigation system, a finished garage with storage cabinets and epoxy floor finish, an under-counter water filter system, and low HOA dues. The HOA also provides access to a nearby community patio area, playground and secure mail facility. Located adjacent to the Boulder bike/pedestrian path system, recreation and bicycle commuting opportunities are steps away. The home also offers convenient access to downtown Boulder and the Foothills Parkway, providing easy connections to Denver and mountain destinations. Lovingly cared for by a single owner since 1998, this residence is move-in ready offering privacy and functionality in a prime location.

Listing Office: eXp Realty - Northern CO

Essential Information

  • MLS® #IR1049690
  • Price$895,000
  • Bedrooms4
  • Bathrooms4.00
  • Full Baths2
  • Half Baths1
  • Square Footage2,205
  • Acres0.09
  • Year Built1992
  • TypeResidential
  • Sub-TypeSingle Family Residence
  • StyleContemporary
  • StatusPending

Community Information

  • Address3327 Sentinel Drive
  • SubdivisionNorthcreek Sub
  • CityBoulder
  • CountyBoulder
  • StateCO
  • Zip Code80301

Amenities

  • AmenitiesPark, Playground, Trail(s)
  • Parking Spaces2
  • # of Garages2

Utilities

Cable Available, Electricity Available, Internet Access (Wired), Natural Gas Available

Interior

  • HeatingForced Air
  • CoolingCeiling Fan(s)
  • FireplaceYes
  • StoriesTwo

Interior Features

Eat-in Kitchen, Radon Mitigation System, Vaulted Ceiling(s)

Appliances

Dishwasher, Disposal, Dryer, Microwave, Oven, Refrigerator, Washer

Fireplaces

Family Room, Gas, Great Room, Living Room

Exterior

  • WindowsWindow Coverings
  • RoofComposition

Lot Description

Cul-De-Sac, Sprinklers In Front

School Information

  • DistrictBoulder Valley RE 2
  • ElementaryColumbine
  • MiddleCasey
  • HighBoulder

Additional Information

  • Date ListedJanuary 15th, 2026
  • ZoningRES

Listing Details

  • eXp Realty - Northern CO
Please provide a valid email address.

Terms and Conditions: The content relating to real estate for sale in this Web site comes in part from the Internet Data eXchange ("IDX") program of METROLIST, INC., DBA RECOLORADO® Real estate listings held by brokers other than RE/MAX Professionals are marked with the IDX Logo. This information is being provided for the consumers personal, non-commercial use and may not be used for any other purpose. All information subject to change and should be independently verified.

Copyright 2026 METROLIST, INC., DBA RECOLORADO® -- All Rights Reserved 6455 S. Yosemite St., Suite 500 Greenwood Village, CO 80111 USA

Listing information last updated on March 12th, 2026 at 11:34am MDT.