Connect

3584 Quincy Bay Place, Loveland, CO – $379,050

  • 2 Beds
  • 2 Baths
  • 1,099 Sqft
  • .04 Acres
  • 2 Beds
  • 2 Baths
  • 1,099 Sqft
  • .04 Acres

New Search X

3584 Quincy Bay Place

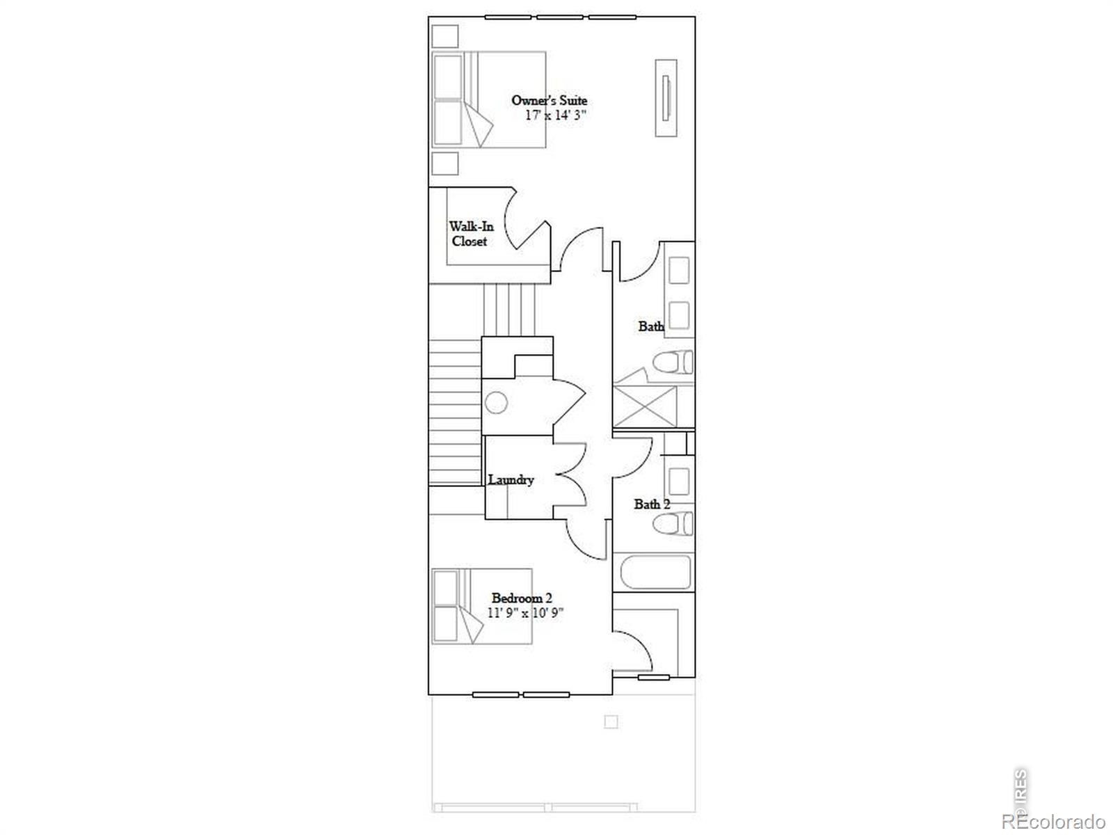
*Contact builder today about Special Financing for this home - terms and conditions apply. Now available in Riano Ridge! Scheduled for June 2026 completion, this thoughtfully designed townhome offers low-maintenance living with a greenbelt directly in front, creating added openness and inviting curb appeal. The main level features a bright, open layout with a comfortable great room that flows into the kitchen and dining area-ideal for everyday living. The kitchen is finished with slab quartz countertops, stainless steel appliances, luxury vinyl plank flooring, and a functional island with seating. Access to the private patio extends your living space outdoors, while the attached 1-car garage adds convenience and storage. Upstairs, the spacious primary suite includes a walk-in closet and private bath. A second bedroom is served by an additional full bath, offering flexibility for guests, roommates, or a home office. Laundry is conveniently located on the upper level. Energy-efficient construction supports long-term comfort and cost savings. Riano Ridge offers multiple floor plans to choose from, providing options to match a variety of lifestyles and needs. Ideally located across from Mehaffey Park, which hosts year-round events and pickleball, and connects to scenic bike paths. Just moments away, the Loveland Recreation Trail system offers over 20 miles of paved trails weaving throughout the city, making it easy to enjoy Northern Colorado's active outdoor lifestyle. Reach out for details on available homes and opportunities. Community pool planned for 2027. Estimated completion June 2026

Listing Office: Kittle Real Estate

Essential Information

  • MLS® #IR1052564
  • Price$379,050
  • Bedrooms2
  • Bathrooms2.00
  • Full Baths1
  • Square Footage1,099
  • Acres0.04
  • Year Built2026
  • TypeResidential
  • Sub-TypeTownhouse
  • StatusActive

Community Information

  • Address3584 Quincy Bay Place
  • SubdivisionRiano Ridge
  • CityLoveland
  • CountyLarimer
  • StateCO
  • Zip Code80538

Amenities

  • AmenitiesPark, Pool
  • Parking Spaces1
  • # of Garages1

Utilities

Electricity Available, Natural Gas Available

Interior

  • HeatingForced Air
  • CoolingCentral Air
  • StoriesTwo

Interior Features

Open Floorplan, Walk-In Closet(s)

Appliances

Dishwasher, Microwave, Oven, Refrigerator

Exterior

  • RoofComposition

School Information

  • DistrictThompson R2-J
  • ElementaryPonderosa
  • MiddleLucile Erwin
  • HighLoveland

Additional Information

  • Date ListedFebruary 27th, 2026
  • ZoningRES

Listing Details

  • Kittle Real Estate
Please provide a valid email address.

Terms and Conditions: The content relating to real estate for sale in this Web site comes in part from the Internet Data eXchange ("IDX") program of METROLIST, INC., DBA RECOLORADO® Real estate listings held by brokers other than RE/MAX Professionals are marked with the IDX Logo. This information is being provided for the consumers personal, non-commercial use and may not be used for any other purpose. All information subject to change and should be independently verified.

Copyright 2026 METROLIST, INC., DBA RECOLORADO® -- All Rights Reserved 6455 S. Yosemite St., Suite 500 Greenwood Village, CO 80111 USA

Listing information last updated on March 2nd, 2026 at 9:18pm MST.